326 St MENDEZ VIGO & BAILEN ST. PUEBLO WARD Dorado, Puerto Rico

Property Type: Commercial Sale
Subtype: Mixed Use
Status: Active
$340,000
Sale
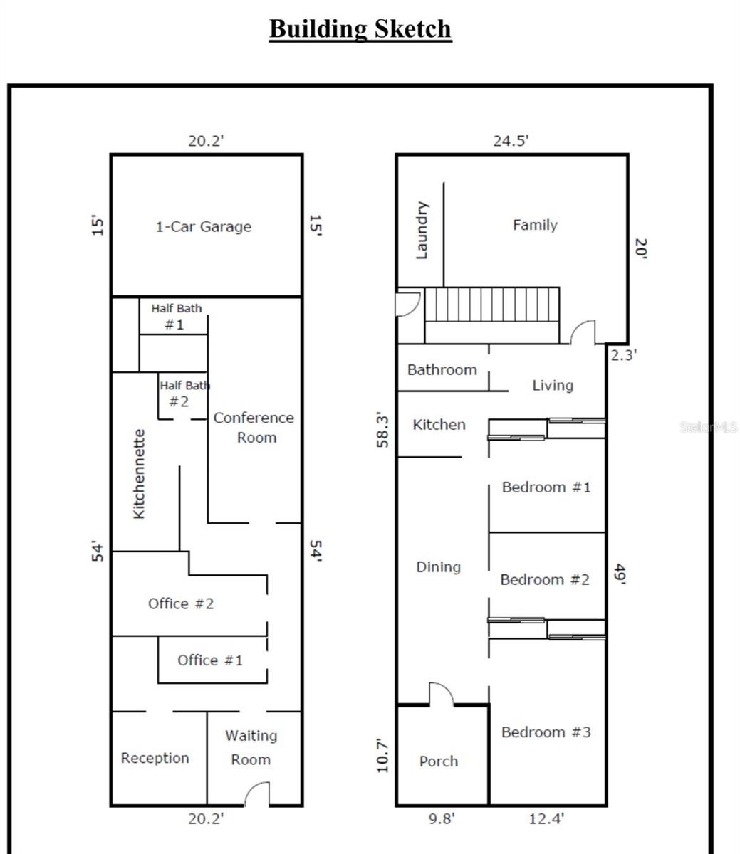
One or more photo(s) has been virtually staged. I have for sale a commercial property in a great location! It is located at the corner of the main street Méndez Vigo & Bailen, center of the town of Dorado; which gives it excellent visibility for any type of business you want to establish. Walking distance from restaurants, grocery store, medical service offices and shops among others. The building has two levels with a very versatile configuration. On the first level, we have a spacious place, perfect for almost any business. It has already furnished offices, which includes "kitchenette". In addition, it has two half bathrooms, a cleaning room, a conference room ideal for meetings and a waiting room that gives a professional touch to the space. And if this were not enough, there are even more additional spaces that you can take advantage of to expand your business or adjust them according to your specific needs. On the second level, we have a very cozy and well distributed apartment: 3 bedrooms, 1 full bathroom, spacious living room and dining space, a (family room) or terrace and a balcony. It includes a 12btu inverter air unit. This apartment is perfect for short or long-term rental, which allows you to generate an additional income. In addition, the location on the main street makes it very attractive for potential tenants or guests. Not only this, the property includes a private garage with space for one vehicle. What do you think? It is an excellent investment, both for your own business and to generate additional rental income. Do not hesitate to call if you have any questions or want to make an appointment to see it in person!
Address: 326 St MENDEZ VIGO & BAILEN ST. PUEBLO WARD Dorado, Puerto Rico 00646

Additional Details

Exterior

Construction Materials
Concrete
Cooling
Ductless

General

Days on Market
73

Area and Lot

Lot Size in Acres
0.03

Financial

Annual Tax
$0
HOA Fees
$0

Location

Doramar Plaza CPCM+R2J, PR-693, Dorado, 00646 Head northeast 1 min (190 m) Take PR-693 to C. San Quintín in Dorado barrio-pueblo, Dorado 7 min (5.0 km) Take Calle Nte. to Calle Bailen 56 sec (240 m) 99-1 Calle Bailen Dorado, 00646

Interested in this property? Get in touch

Jessica Ortiz

License: #21088
3071 Ave. Alejandrino
Centro Comercial Plaza Alejandrino Ofic. 115-C
Guaynabo Puerto Rico, 00696

Newly Added on Same Area

Active
7 DORADO COUNTRY ESTATES Dorado, PR
$11,500,000
6 Beds
6.3 Bath
27007 SQFT
Active
Calle Clavel HACIENDA DE DORADO #Lot 30 A Dorado, PR
$135,000
20152 SQFT
Active
J-1 COSTA DORADA 1 Dorado, PR
$1,685,000
3 Beds
2.1 Bath
4831 SQFT
Active
ii-2 Calle Gaviota II-2 CALLE GAVIOTA Dorado, PR
$6,000
3 Beds
4 Bath
6458 SQFT
Active
710 SABANERA DE DORADO Dorado, PR
$1,995,000
4 Beds
4.1 Bath
7750 SQFT
Active
Dorado Beach East DORADO BEACH EAST Dorado, PR
$5,995,000
4 Beds
6 Bath
10085 SQFT

Recently Sold on Same Area

Closed
FF7 CALLE GAVIOTA Dorado, PR
$650,000
3 Beds
3 Bath
6728 SQFT
Closed
791 CALLE MAR DEL NORTE Dorado, PR
$4,000
4 Beds
2.1 Bath
602 SQFT
Closed
53 CALLE MIMOSA #53 Dorado, PR
$335,000
3 Beds
2 Bath
1555 SQFT
Closed
VILLAS DE GOLF WEST #121 Dorado, PR
$5,000
4 Beds
4.1 Bath
2863 SQFT
Closed
CAMINO DEL FLAMBOYAN Dorado, PR
$6,500
3 Beds
3.1 Bath
8099 SQFT
Closed
2-PH05 PLANTATION VILLAGE Dorado, PR
$3,000,000
3 Beds
3.1 Bath
Resources
>