304 CAMINO PUERTO NUEVO Lajas, Puerto Rico

Tipo de Propiedad: Residencial
Subtipo: Single Family Residence
Estado: Activo
3
Cuartos
3
BaÑos
$379,000
Venta
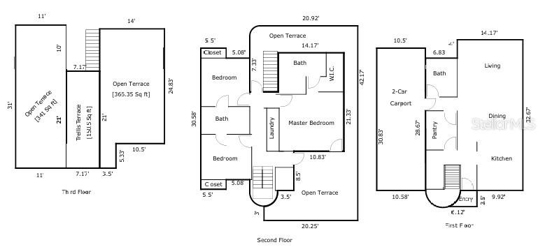
In the exclusive Urb. Terrazas de La Parguera, Lajas (coords. 17.975312, -67.054587), a 3-bedroom, 3-bath residence with approx. 1,461 sq ft of GLA on a 415 m² lot (˜4,464 sq ft) is for sale. It features a comfortable living–dining–kitchen layout and generous outdoor areas to enjoy the coastal breeze, including two open terraces of 341 sq ft and 366.35 sq ft, a pergola terrace of 150.5 sq ft, a two-car carport, and an outdoor shower by the carport; adding these non-habitable areas to the GLA, the gross area totals ˜3,149 sq ft. The community offers a controlled-access gate and a pool. The location is outstanding: just minutes from La Parguera’s town center, its marinas, boat tours and water taxis to the cays (e.g., Mata La Gata and Cayo Enrique), and its famous bioluminescent bay, plus restaurants, cafés, and a vibrant nautical scene. With easy access via PR-304, it’s a strategic spot for those seeking to combine residential tranquility, a coastal lifestyle, and strong short-term rental demand (subject to permits and applicable regulations). From the terraces, enjoy views of the sea and cays, making this property an excellent option for living or investing in Puerto Rico’s southwest.
Dirección: 304 CAMINO PUERTO NUEVO Lajas, Puerto Rico 00667

Detalles Adicionales

Interior

Total de Cuartos
3
Baños Completos
3
Lavanderia
Inside
Pisos
Tile
Enseres
Cooktop, Dryer, Electric Water Heater, Microwave, Range, Refrigerator, Washer
Otros Detalles
Eat-in Kitchen, Kitchen/Family Room Combo, PrimaryBedroom Upstairs

Exterior

Materiales de Construcción
Concrete
Otros Detalles
Garden, Courtyard, Sidewalk, Private Mailbox

Cuartos

Second Piso
Primary Bedroom
First Piso
Kitchen, Living Room

General

Mascotas Permitidas

Área y Terreno

Tamaño del Terreno en Acres
0.09
Área Habitable en Pies Cuadrados
1462
Utilidades
Water Connected, Electricity Connected, Sewer Connected

Inversión

Tax Anual
$0
Costos de HOA
$235

Localización

Aeropuerto Internacional Rafael Hernández To the Property Aeropuerto Internacional Rafael Hernández, Hangar Rd, Aguadilla, Continue to Engineer Orlando Alárcon Ave/Hangar Rd Take Carr Puerto Rico 2 O/PR-2 W, Desvío Oeste de Mayagüez, PR-114 and PR-116 to Calle 1 in Lajas Drive to Calle 304 Camino Puerto Viejo, Urb Terrazas de La Parguera.

¿Interesado en la Propiedad? Comunicate

Armando Claudio Quintana

Licencia: #19052
500 Blvd Paseo del Rio Apto 90
Humacao Puerto Rico, 00791
Teléfono: 787-596-1510

Nuevos Listados en la Misma Área

Activo
Lajas, PR
$400,000
2 Cuartos
2.1 Baños
502 Pies Cuadrados
Activo
URB. MONTE FLORIDO #B-13 Lajas, PR
$799,900
6 Cuartos
3.1 Baños
6456 Pies Cuadrados
Activo
304 AVENIDA LA PARGUERA Lajas, PR
$289,000
10296 Pies Cuadrados
Activo
304 AVE LA PARGUERA Lajas, PR
$995,000
112523 Pies Cuadrados
Activo
304 VILLA CARACOLES #302-C Lajas, PR
$2,000
2 Cuartos
2 Baños
Activo
Carr. 306, Km. 1.6 BO. PARÍS Lajas, PR
$295,000
486946 Pies Cuadrados

Recientemente Vendido en la Misma Área

Cerrado
394 B-2 Lajas, PR
$160,000
9 Cuartos
4 Baños
22000 Pies Cuadrados
Cerrado
6 URB. SAN RAFAEL Lajas, PR
$1,300
2 Cuartos
1 Baños
5224 Pies Cuadrados
Cerrado
B URB. PALMAS DEL VALLE #13 Lajas, PR
$1,200
3 Cuartos
2 Baños
Cerrado
ORQUIDEA EL VALLE I #149 Lajas, PR
$124,900
3 Cuartos
1 Baños
3497 Pies Cuadrados
Cerrado
31 LA PARGUERA (CARIBBEAN VIEW) Lajas, PR
$425,000
4 Cuartos
2 Baños
9684 Pies Cuadrados
Cerrado
PR-116 KMHM 9.6 BARRIO COSTA Lajas, PR
$245,000
15826 Pies Cuadrados
Resources
>