![]() ![]() ![]() ![]()
Property Type:
Commercial Sale
Subtype:
Office
Status:
Active
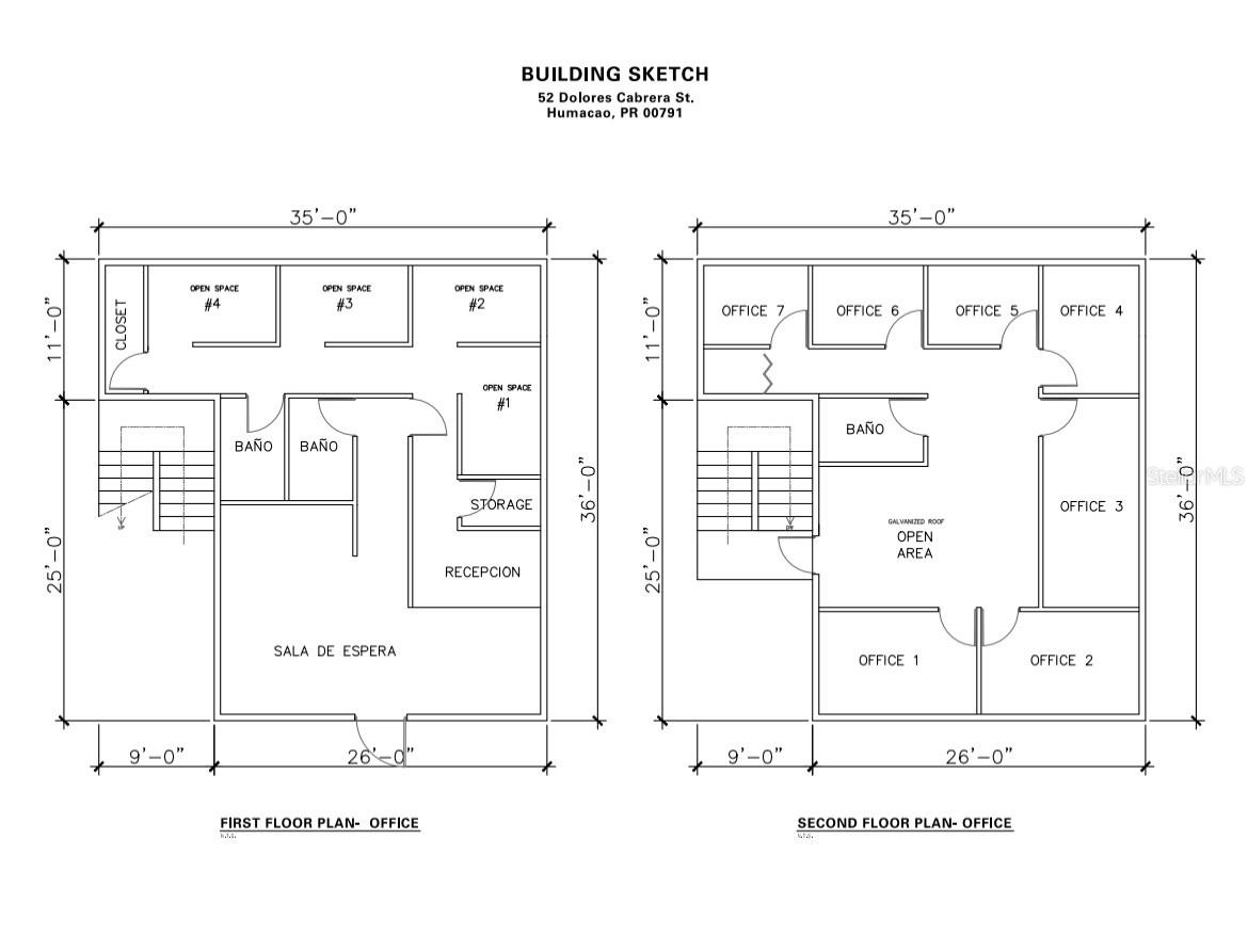
COMMERCIAL TWO STORY BUILDING
Located in the historic Humacao old town at Dolores Cabrera Street.
Two story (2); 1st floor leased to medical office; 2nd floor is distributed in seven (7) offices with a common area, one bathroom, and a cleaning closet (recently operated as a student tutoring center).
Address:
52 DOLORES CABRERA ST Humacao, Puerto Rico 00791
Additional DetailsExteriorStories 2 Construction Materials Concrete Area and LotLot Size in Acres 0.04 FinancialAnnual Tax $0 HOA Fees $0 Location
PR-30 South-East, Road 3 North-East, turn right on Dolores Cabrera Street, 2nd building on the right.
Interested in this property? Get in touch
Jose Gonzalez
License:
#11804
PO Box 195155
San Juan Puerto Rico, 00919
Phone:
787-638-5175
Office:
787-638-5175
Newly Added on Same AreaRecently Sold on Same Area |



