![]() ![]()
Property Type:
Land
Status:
Active
This exceptional industrial lot is located in Bayamón’s prime industrial district, strategically positioned near major ports and key distributors including Goya and Puma Energy, among others.
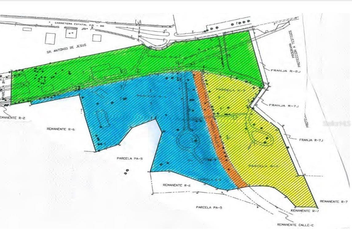
With Heavy Industrial (I-P) zoning and a total registered area of 114,223.77 square meters (28.19 acres) across four segregated parcels, the site provides extraordinary flexibility for large-scale development.
Its strategic location, connectivity, and ample space make it ideal for distribution centers, logistics hubs, manufacturing facilities, or industrial warehouses seeking proximity to San Juan’s metropolitan market.
Highlights:
• Prime Bayamón industrial location near major distributors and infrastructure
• Heavy Industrial (I-P) zoning
• Total area: 114,223.77 m² (28.19 acres)
• Subdivided into 4 registered parcels
• Ideal for logistics, warehousing, or manufacturing projects
• $148.83 a square meter
Address:
CARRETERA 2, KM 3.1 Bayamón, Puerto Rico 00961
Additional DetailsArea and LotLot Size in Acres 26.97 Utilities Electricity Available, Sewer Available, Water Available FinancialAnnual Tax $0 HOA Fees $0 Location
Parque Industrial Luchetti, Bo Juan Sanchez. Solar R-6 Bayamón, Puerto Rico
Interested in this property? Get in touch
Meilyn Guzman Ensenat
License:
#20287
Cerro Real M15
Guaynabo Puerto Rico, 00969
Phone:
787-408-1894
Office:
787-408-1894
Newly Added on Same AreaRecently Sold on Same Area |

