Carr. 413 Int. Km 4 THE JUNGLE Rincón, Puerto Rico

Property Type: Residential
Subtype: Condo - Hotel
Status: Active
10
Rooms
5
Baths
$1,995,000
Sale
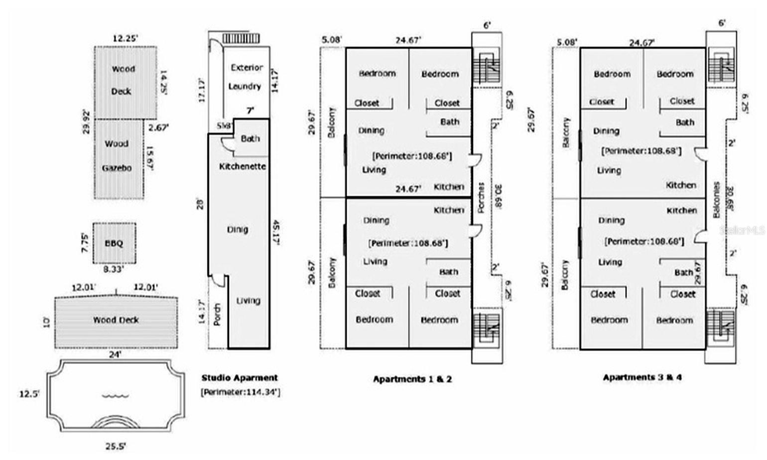
Welcome to The Jungle, a boutique guesthouse in the heart of Puntas, Rincón. Nestled among lush tropical greenery and just a three-minute walk from the iconic Sandy Beach, this five-unit property invites guests to slow down, reconnect with nature, and experience the relaxed yet sophisticated spirit that defines Rincón. Situated on a 1,295-square-meter lot, The Jungle offers ample space for privacy, outdoor living, and future potential. The Jungle blends tropical-chic design with contemporary Caribbean style, offering a balance of comfort, functionality, and serene island ambiance. Polished terracotta-style floors, natural textures like rattan, wicker, and wood, and soft, neutral textiles create a refined yet earthy aesthetic. Louvered windows and expansive terraces connect each unit with the surrounding vegetation, filling interiors with natural light and tropical breezes. Unit #1 offers two bedrooms, one bathroom, a fully equipped kitchen, and a private balcony. Unit #2 provides two bedrooms, one bathroom, a fully equipped kitchen, and a private balcony. Unit #3 features two bedrooms, one bathroom, a fully equipped kitchen, and a private balcony. Unit #4 offers two bedrooms, one bathroom, a fully equipped kitchen, and a private balcony. Unit #5 is a studio featuring one bathroom, a large kitchen, and a private outdoor area. Units 1–4 all feature balconies overlooking the lush jungle, seamlessly merging interior and exterior living. Outdoor spaces, including a 15’ x 30’ pool, multiple terraces, shaded lounge areas, and a gazebo with a large dining table, are designed for relaxation, social gatherings, and connecting with the tropical surroundings. Kitchens are modern and functional, with granite countertops, stainless-steel appliances, and minimalist cabinetry. Bathrooms feature clean lines, neutral palettes, artistic tile accents, and statement lighting. Throughout the property, terracotta-style floors add warmth, while louvered windows invite sunlight and the gentle tropical breeze. Each unit has been uniquely decorated, with natural materials, hanging basket lights, woven mirrors, and curated details that reinforce the sense of place. The overall aesthetic evokes tropical modernism — a balance of nature, simplicity, and refined island comfort. Outdoor living is at the heart of The Jungle. Tropical gardens, intimate lounge areas, and shaded terraces flow naturally toward the pool, creating a serene sanctuary across the expansive 1,295 -square-meter grounds. Guests can enjoy jungle privacy while being steps away from surfing, dining, boutique shops, and the vibrant coastal culture of Rincón. The property is impeccably maintained and fully operational — ready for immediate management, whether as a thriving short-term rental business or as long-term accommodations. The property qualifies for Act 60 incentives, making it an attractive option for those looking to operate a guesthouse in Puerto Rico’s growing tourism scene. This property presents an exceptional investment opportunity with remarkable potential. Every detail at The Jungle has been thoughtfully curated to create a seamless connection with the tropical surroundings. It’s not just a property — it’s a rhythm, a feeling, and a lifestyle: jungle privacy, beach living, and the essence of Rincón’s relaxed yet sophisticated spirit.
Address: Carr. 413 Int. Km 4 THE JUNGLE Rincón, Puerto Rico 00677

Additional Details

Interior

Total Bedrooms
10
Full Bathrooms
5
Laundry
Laundry Room
Flooring
Ceramic Tile
Appliances
Cooktop, Dishwasher, Microwave, Refrigerator, Solar Hot Water, Water Filtration System, Water Softener
Other Interior Features
Ceiling Fans(s), Eat-in Kitchen, Open Floorplan, Primary Bedroom Main Floor, Stone Counters

Exterior

Stories
3
Construction Materials
Concrete
Parking
Open
Cooling
Mini-Split Unit(s)
Vegetation
Fruit Trees, Mature Landscaping, Trees/Landscaped
Other Exterior Features
Balcony, Garden, Lighting

Rooms

First Floor
Bedroom 1, Bedroom 2, Bathroom 1, Kitchen, Living Room, Bedroom 3, Bedroom 4, Bathroom 2, Primary Bedroom
Second Floor
Bedroom 5, Bathroom 5

General

Days on Market
92

Area and Lot

Lot Size in Acres
0.32
Living Area in SQFT
3583
Architectural Style
Coastal, Contemporary
Utilities
BB/HS Internet Available, Electricity Connected, Water Connected
View
Garden, Trees/Woods

Financial

Annual Tax
$0
HOA Fees
$0

Location

From Rincón Plaza, take PR-115 north and turn left onto PR-413 toward Puntas/Sandy Beach. Continue on PR-413 passing restaurants and guesthouses in the Puntas area. Follow PR-413 toward Sandy Beach, then turn inland on the local access road up the hill to The Jungle guesthouse in Puntas. Property will be on your right.

Interested in this property? Get in touch

Alexandra Esteva

License: #21684
1055 Ashford Ave
San Juan Puerto Rico, 00907

Newly Added on Same Area

Active
373 CALLE FRANCISCO COLON GUERRA BO PUEBLO Rincón, PR
$650,000
5 Beds
3 Bath
5158 SQFT
Active
413 Km. 5.9 Int. BO ENSENADA SOLAR G CARRETERA Rincón, PR
$3,500
3 Beds
2 Bath
26109 SQFT
Active
Km 15 H 7 PR 115 VILLA LA JOLLA Rincón, PR
$1,500,000
3 Beds
4 Bath
159932 SQFT
Active
Cambija CAMBIJA #1D Rincón, PR
$599,000
2 Beds
2 Bath
1013 SQFT
Active
17 CLL MUÑOZ RIVERA Rincón, PR
$850,000
Active
PR-115 ENSENADA WARD RINCON WAVE VIEW #1B Rincón, PR
$450,000
2 Beds
1 Bath
906 SQFT

Recently Sold on Same Area

Closed
10 SEA BEACH COLONY Rincón, PR
$508,000
3 Beds
3 Bath
4987 SQFT
Closed
Calle Coqui SR 412, KM 4.9 - SOLAR #1 Rincón, PR
$385,000
2 Beds
1 Bath
30492 SQFT
Closed
Rincón, PR
$450,000
5 Beds
3.1 Bath
23250 SQFT
Closed
112 CAMBIJA #B 113 Rincón, PR
$300,000
2 Beds
1 Bath
19747 SQFT
Closed
Benajmin Gomez 11 CALLE BENJAMIN GOMEZ Rincón, PR
$550,000
2 Beds
2 Bath
3560 SQFT
Closed
115 CALLE PRINCIPAL Rincón, PR
$950
3 Beds
1 Bath
1000 SQFT
Resources
>