23 CASA CANAL Rincón, Puerto Rico

Tipo de Propiedad: Residencial
Subtipo: Single Family Residence
Estado: Activo
3
Cuartos
4.1
BaÑos
$2,385,000
Venta
Location, Location, Location! Experience coastal luxury in this 3-bedroom, 4-bathroom quintessential beach house featuring an open floor plan that seamlessly blends indoor and outdoor living. Enjoy direct beach access to the stunning Lalas beach, known for its calm waters and incredible sunsets. The spacious living area flows effortlessly into the gourmet kitchen and dining spaces—perfect for entertaining, relaxing with family or investment. Step outside to your private paradise, complete with an amazing pool, swim-up bar, and lounge area designed for ultimate comfort and style. Currently the home is a lucrative rental property that generates just under $200k annually. Whether you’re hosting guests or looking for your own personal retreat, this home offers the perfect balance of modern design, coastal elegance, and resort-style amenities. Located in the exclusive Sea Beach Colony neighborhood on a 1,346 sm corner lot, fully gated & secure with no neighbors on either side. Home offers full back up power and water reserves. Qualified buyers contact us today! The location cannot be beat!
Dirección: 23 CASA CANAL Rincón, Puerto Rico 00677

Detalles Adicionales

Interior

Total de Cuartos
3
Baños Completos
4
Medios Baños
1
Lavanderia
Inside
Pisos
Tile
Enseres
Dryer, Microwave, Refrigerator, Washer
Otros Detalles
Ceiling Fans(s), Kitchen/Family Room Combo, Living Room/Dining Room Combo, Open Floorplan, Primary Bedroom Main Floor

Exterior

Materiales de Construcción
Concrete
Aire Acondicionado
Mini-Split Unit(s)
Otros Detalles
Balcony, Outdoor Grill, Outdoor Shower

Cuartos

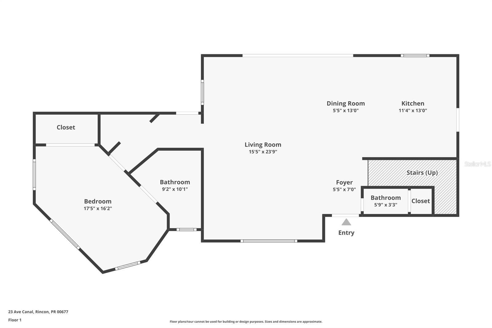
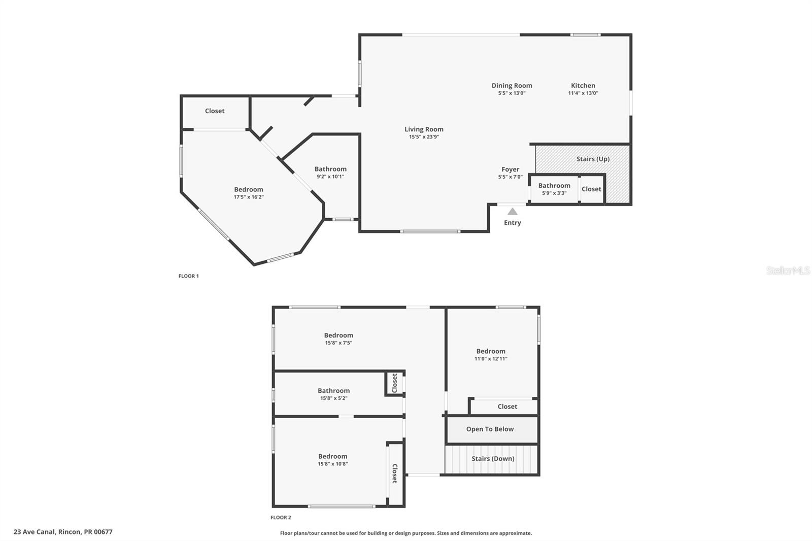
First Piso
Primary Bedroom, Kitchen, Living Room

General

Dias en el Mercado
1

Área y Terreno

Tamaño del Terreno en Acres
0.34
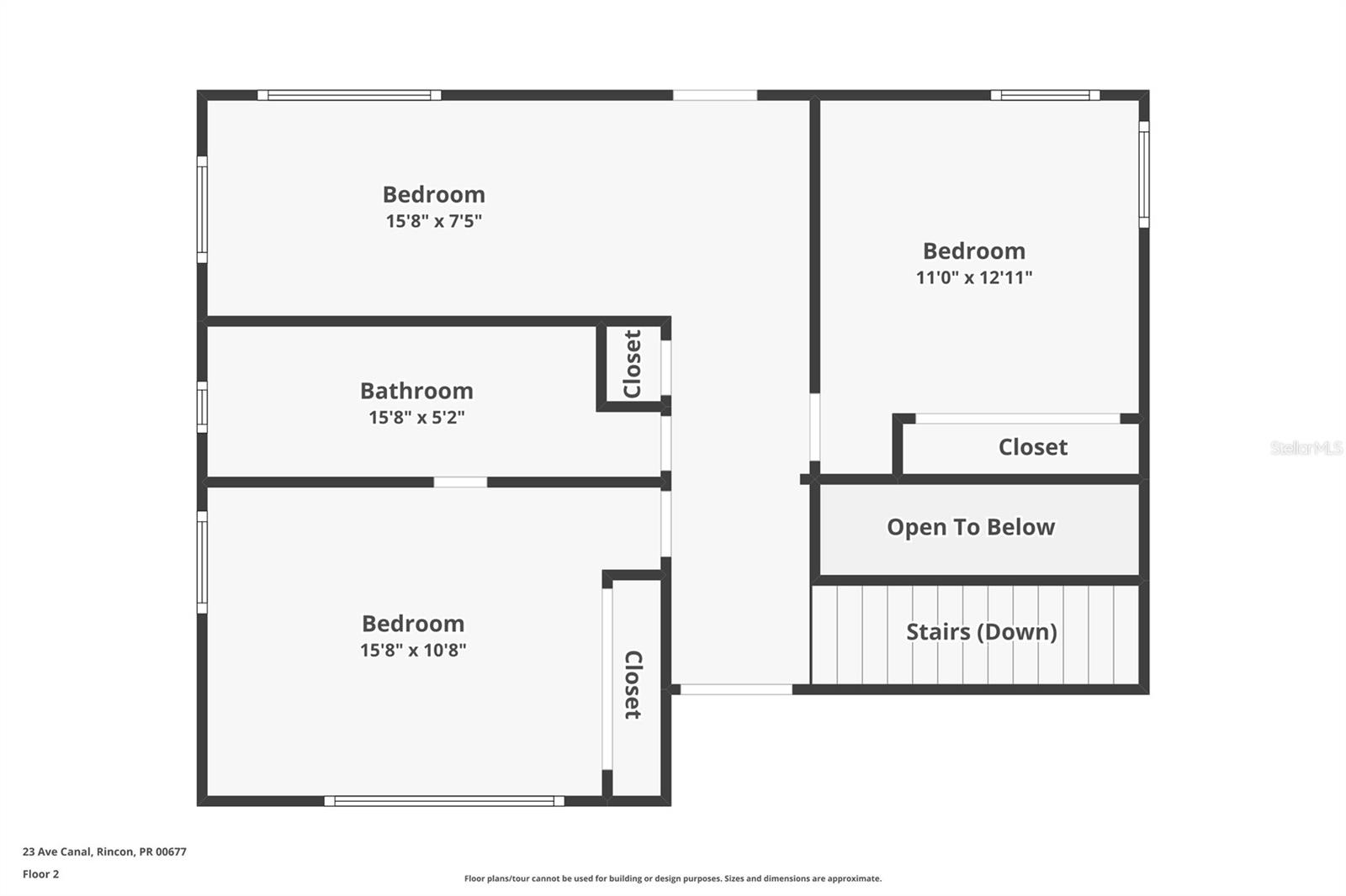
Área Habitable en Pies Cuadrados
2200
Utilidades
Electricity Connected, Propane, Water Connected

Inversión

Tax Anual
$2,530
Costos de HOA
$0

Localización

Drive south on Carr 115, turn left onto Calle Munoz Rivera/Carr 115 for approximately 700 meters, turn right onto Sea Beach Drive, drive for 170 meters and turn right onto Canal Street, drive straight for 150 meters and house is at the end.

¿Interesado en la Propiedad? Comunicate

Justin Turri

Licencia: #24178
PO Box 700
Rincon Puerto Rico, 00677
Teléfono: 787-242-4527

Nuevos Listados en la Misma Área

Activo
Calle Jardines BO. PUEBLO Rincón, PR
$2,800
4 Cuartos
3 Baños
9687 Pies Cuadrados
Activo
317 EXT LOS ROBLES Rincón, PR
$2,695,000
4 Cuartos
3.1 Baños
17687 Pies Cuadrados
Activo
ENSENADA Rincón, PR
$1,500,000
11894 Pies Cuadrados
Activo
Carr. 413 Int. Km 4 THE JUNGLE Rincón, PR
$1,995,000
10 Cuartos
5 Baños
14155 Pies Cuadrados
Activo
Puntas CARR 413 KM 3.3 Rincón, PR
$559,000
5 Cuartos
3 Baños
2250 Pies Cuadrados
Activo
CALLE LAS PALMAS Rincón, PR
$3,500,000
312067 Pies Cuadrados

Recientemente Vendido en la Misma Área

Cerrado
115 CAR. 115 K.12.2 #401 Rincón, PR
$3,500
3 Cuartos
2.1 Baños
430556 Pies Cuadrados
Cerrado
PR-429 KM.1.2 #104 Rincón, PR
$1,600
2 Cuartos
2 Baños
11542 Pies Cuadrados
Cerrado
412 CAMBIJA #404 Rincón, PR
$3,000
3 Cuartos
3 Baños
29000 Pies Cuadrados
Cerrado
1 Calle Poigo Doleta RINCON OCEAN CLUB #103 Rincón, PR
$220,000
2 Cuartos
2 Baños
Cerrado
3444 CALLE POGGIO DOLETTA #2-E Rincón, PR
$310,000
2 Cuartos
2 Baños
Cerrado
Ocean Palace CAMBIJA STREET #603 Rincón, PR
$529,000
2 Cuartos
2 Baños
Resources
>