489 CARR 489 Hatillo, Puerto Rico

Property Type: Residential
Subtype: Single Family Residence
Status: Closed
6
Rooms
3
Baths
$219,000
Sale
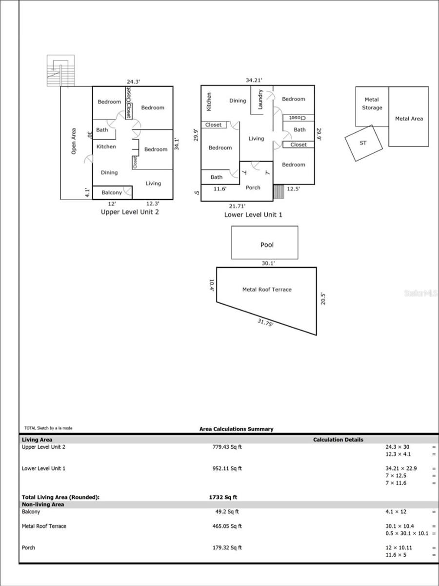
Modern kitchen, living room, dining room, security doors and windows, and a balcony with terraces and a pool. The upper floor, with its excellent condition, has been remodeled and features new ceilings and interior partitions. It boasts a spacious layout with three comfortable bedrooms and one bathroom, as well as a balcony and separate entrance.
Address: 489 CARR 489 Hatillo, Puerto Rico 00659

Additional Details

Interior

Total Bedrooms
6
Full Bathrooms
3
Laundry
Other
Flooring
Other
Other Interior Features
L Dining

Exterior

Construction Materials
Block, Concrete
Heating
Other
Other Exterior Features
Garden, Courtyard

Rooms

First Floor
Bedroom 1, Dining Room, Kitchen, Living Room, Primary Bedroom

General

Days on Market
19

Area and Lot

Lot Size in Acres
0.18
Living Area in SQFT
756
Utilities
Water Connected, Electricity Connected
View
Garden, Park/Greenbelt, Pool

Financial

Annual Tax
$0
HOA Fees
$0

Location

Continue to Avenida San Luis/PR-129 1 min (190 m)Head northwest 12 m Turn left toward Hospital Pavía Arecibo 47 m Turn left toward Hospital Pavía Arecibo100 m Turn right onto Hospital Pavía Arecibo27 m Turn left at the 1st cross street onto Avenida San Luis/PR-129 Continue to follow PR-129 14 min (9.3 km) Continue on PR-134 to your destination11 min (7.7 km) Turn left onto PR-134 3.3 km Turn right to stay on PR-134 300 m Slight left onto PR-489 2.2 km Continue straight Destination will be on the right

Agent

Sugey Martinez

License: #C-15704
Calle 6 A-7
Urb Ocean View
Arecibo Puerto Rico, 00612

Newly Added on Same Area

Active
130 BO. CAPAEZ Hatillo, PR
$210,000
6 Beds
3 Bath
6456 SQFT
Active
492 BO. CORCOVADO Hatillo, PR
$180,000
4 Beds
2 Bath
5171 SQFT
Pending
SR 130 KM 2.7 Capaez Ward SR 130 KM 2.7 CAPAEZ WARD, HATILLO PR 00659 Hatillo, PR
$175,000
3 Beds
2 Bath
1282 SQFT
Pending
SR 130 KM 2.7 Capaez Ward SR 130 KM 2.7 CAPAEZ WARD Hatillo, PR
$125,000
3 Beds
1 Bath
1282 SQFT
Active
CALLE A 286 COMUNIDAD SANTA ROSA Hatillo, PR
$160,000
5782 SQFT
Active
119 AVENIDA SUSONI Hatillo, PR
$1,600,000
8 Beds
4 Bath
2998 SQFT

Recently Sold on Same Area

Closed
240 AVEN PABLO AGUILAR Hatillo, PR
$725
1 Beds
1 Bath
337 SQFT
Closed
A19 Felipe Arana SAN RAMON Hatillo, PR
$600,000
5 Beds
5 Bath
2998 SQFT
Closed
BO. PUEBLO, HATILLO Hatillo, PR
$60,000
9823 SQFT
Closed
J 4 URB. ESTANCIAS DE LA CEIBA Hatillo, PR
$1,000
3 Beds
1 Bath
4400 SQFT
Closed
Calle B PARCELAS ANGEL VELEZ Hatillo, PR
$135,000
3 Beds
2 Bath
11186 SQFT
Closed
50 URB COSTA NORTE M7 Hatillo, PR
$369,000
4 Beds
2.1 Bath
9234 SQFT
Resources
>