500 PLANTATION VILLAGE DRIVE #3-208 Dorado, Puerto Rico

Tipo de Propiedad: Residencial
Subtipo: Condominium
Estado: Activo
3
Cuartos
3.1
BaÑos
$3,295,000
Venta
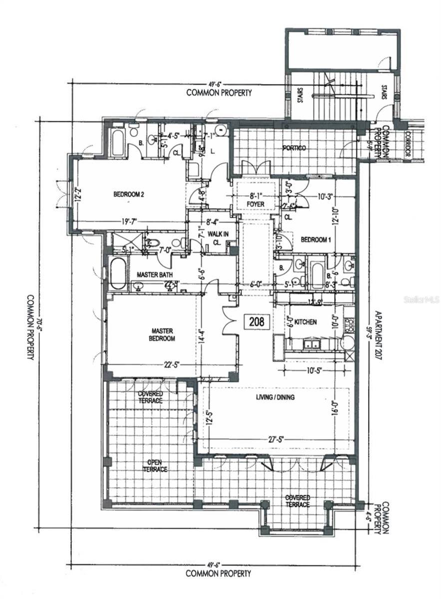
Plantation Village 3-208 offers a unique opportunity to own one of the coveted corner residences in Building 3—a second-story home defined by its expansive wrap-around terrace and serene elevated views. Set within the Dorado Beach Resort, this residence delivers a refined blend of indoor comfort and outdoor living, all within the exclusive community anchored by the Ritz-Carlton Reserve. Designed for light, space, and privacy, this 3-bedroom, 3.5-bathroom condo, with 2,337 sq. ft. of living area, features multiple exposures, oversized windows, and an airy layout that opens directly onto its signature terrace. Enjoy direct terrace access from both the living room and the primary bedroom, creating a seamless connection between interior spaces and the expansive outdoor area. The property is offered turn-key, complete with furnishings, making it easy to enjoy from the moment you arrive. Ownership in Plantation Village provides eligibility for the renowned Dorado Beach Resort membership, granting access to an unmatched collection of amenities: TPC golf courses, world-class beaches, tennis and pickleball facilities, members-only dining, multiple pools, the water park, a full fitness center, Encanto Beach Club, the Rockefeller Nature Trail, Spa Botánico, and the Barlovento beachfront experience. Residents of Building 3 also benefit from dual elevators, 24/7 concierge and security services, pet-friendly policies, and full emergency backup systems maintained by the on-site management team. A beautifully appointed home in one of Puerto Rico’s most exclusive neighborhoods, 3-208 is ready for immediate enjoyment. Contact us to schedule your private tour.
Dirección: 500 PLANTATION VILLAGE DRIVE #3-208 Dorado, Puerto Rico 00646

Detalles Adicionales

Interior

Total de Cuartos
3
Baños Completos
3
Medios Baños
1
Lavanderia
Laundry Room
Pisos
Ceramic Tile
Enseres
Built-In Oven, Cooktop, Dishwasher, Dryer, Electric Water Heater, Microwave, Refrigerator, Washer
Otros Detalles
Kitchen/Family Room Combo, Living Room/Dining Room Combo, Open Floorplan, Primary Bedroom Main Floor, Stone Counters, Walk-In Closet(s), Window Treatments

Exterior

Niveles
4
Materiales de Construcción
Concrete
Espacio de Garaje
2
Estacionamiento
Assigned, Covered, Deeded, Garage Door Opener, Golf Cart Garage, Golf Cart Parking, Guest, Underground
Calentamiento
Electric
Aire Acondicionado
Central Air
Otros Detalles
Awning(s), Balcony

Cuartos

First Piso
Kitchen, Primary Bedroom, Living Room

General

Dias en el Mercado
65
Garaje
Mascotas Permitidas

Área y Terreno

Área Habitable en Pies Cuadrados
2337
Utilidades
Cable Available, Electricity Available, Fiber Optics
Comunidad
Clubhouse, Fitness Center, Gated Community - Guard, Golf Carts OK, Golf, Park, Playground, Pool, Restaurant, Tennis Court(s)

Inversión

Tax Anual
$0
Costos de HOA
$2,184

Localización

From San Juan/SJU: take PR-26 west to PR-22 (Autopista José de Diego) toward Bayamón/Arecibo. Exit at Dorado (PR-693) and continue north toward Dorado. Follow PR-693 to the main entrance of Dorado Beach Resort (Ritz-Carlton Reserve) on the left. Check in at security and follow the internal signs to Plantation Village.

¿Interesado en la Propiedad? Comunicate

Mariangel Marti

Licencia: #14566
320 Camino Guama
Dorado Puerto Rico, 32703
Teléfono: 787-647-8386

Nuevos Listados en la Misma Área

Activo
470 PASEO DEL MAR Dorado, PR
$685,000
4 Cuartos
3.1 Baños
2624 Pies Cuadrados
Activo
5 THE GREENS VILLAS AT DORADO BEACH Dorado, PR
$4,950,000
4 Cuartos
4.1 Baños
6775 Pies Cuadrados
Activo
346 CAMINO DEL CUPEY Dorado, PR
$7,500
3 Cuartos
3.1 Baños
10452 Pies Cuadrados
Activo
3 GABLES BREEZE #29 Dorado, PR
$250,000
3 Cuartos
2.1 Baños
1764 Pies Cuadrados
Activo
200 Dorado Beach Dr WEST BEACH PH #3141-3142 Dorado, PR
$200,000
4 Cuartos
4.1 Baños
Activo
182 DORADO BEACH EAST Dorado, PR
$4,500,000
3 Cuartos
3.1 Baños
11765 Pies Cuadrados

Recientemente Vendido en la Misma Área

Cerrado
451 CAMINO GUAJATACA SABANERA Dorado, PR
$11,000
5 Cuartos
4.1 Baños
11881 Pies Cuadrados
Cerrado
251 DORADO BEACH EAST Dorado, PR
$27,000
4 Cuartos
3.3 Baños
24864 Pies Cuadrados
Cerrado
K8 CALLE MAR DE BENGAL Dorado, PR
$8,500
4 Cuartos
2.2 Baños
5712 Pies Cuadrados
Cerrado
610 CALLE MAR INDICO Dorado, PR
$1,050,000
4 Cuartos
3.1 Baños
5780 Pies Cuadrados
Cerrado
FF7 CALLE GAVIOTA Dorado, PR
$650,000
3 Cuartos
3 Baños
6728 Pies Cuadrados
Cerrado
791 CALLE MAR DEL NORTE Dorado, PR
$4,000
4 Cuartos
2.1 Baños
602 Pies Cuadrados
Resources
>