PR 132 km 22.4 BO CANAS Ponce, Puerto Rico

Tipo de Propiedad: Venta Comercial
Subtipo: Industrial
Estado: Activo
$1,675,000
Venta
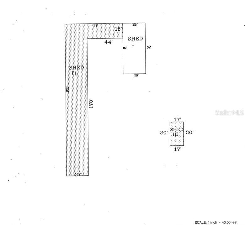
Looking to invest in commercial ? Looking a high traffic location ? Looking to Buy in Ponce Puerto Rico ? This option can attract your look. For Sale A Hardware Store Building with Four Parcels Commercial Zone Area Zoning - All together are almost 1.5 Acres. State Road 132 km 22.4 ; GPS COORDINATES ARE : 18.02636, -667.65866 Parcel TAX ID # 388-005-010-14-000, Lot Size 1,680.39 Square Meters , # 388-005-010-08-000, Lot Size 1,504.32 Square Meters, #388-005-010-09-000 , Lot Size 1,308.17 Square Meters, #388-005-010-10-001, Lot Size 1,286.66 Square Meters. Building is like 3,200 square feet. Approx ,HARDWARE STORE, BUILDINGS, MATERIALS, EQUIPMENTS, AND ALL INCLUDED) AS IS, WHERE IT IS ( TAL Y COMO SE ENCUENTRA).
Dirección: PR 132 km 22.4 BO CANAS Ponce, Puerto Rico 00728

Detalles Adicionales

Interior

Pisos
Otro

Exterior

Materiales de Construcción
Block, Concrete
Vegentación
Wooded

General

Dias en el Mercado
1

Área y Terreno

Tamaño del Terreno en Acres
1.5

Inversión

Tax Anual
$0
Costos de HOA
$0

Localización

STATE ROAD SR 132 KM 22.4 PONCE PR 00728 ;GPS COORDINATES ARE : 18.02636, -667.65866

¿Interesado en la Propiedad? Comunicate

Eddie Nieves Santiago

Licencia: #15185
PO BOX 5258
MAYAGUEZ Puerto Rico, 00681
Teléfono: 787-307-6673

Nuevos Listados en la Misma Área

Activo
Calle 1 URB VILLA GRILLASCA M10A Ponce, PR
$1,000
3 Cuartos
2 Baños
5096 Pies Cuadrados
Activo
2063 Calle Yagrumo URB. LOS CAOBOS Ponce, PR
$900
3 Cuartos
1 Baños
3062 Pies Cuadrados
Activo
Calle 9 EXTENSION LA RAMBLA #1686 Ponce, PR
$295,000
5 Cuartos
6243 Pies Cuadrados
Activo
CALLE 3 116 LA RAMBLA Ponce, PR
$2,600
5 Cuartos
2 Baños
3957 Pies Cuadrados
Activo
CALLE 1 BLQ A JARDINES DE FAGOT Ponce, PR
$54,000
3983 Pies Cuadrados
Activo
2844 ROOSEVELT #201 Ponce, PR
$1,400
3 Cuartos
1 Baños
1076 Pies Cuadrados

Recientemente Vendido en la Misma Área

Cerrado
11 DELICIAS Ponce, PR
$225,000
5 Cuartos
2 Baños
1200 Pies Cuadrados
Cerrado
6819 CALLE SAN ESTEBAN Ponce, PR
$800
2 Cuartos
1 Baños
3267 Pies Cuadrados
Cerrado
448 Calle Solimar VILLA DEL CARMEN Ponce, PR
$1,400
3 Cuartos
1 Baños
3196 Pies Cuadrados
Cerrado
48 CALLE MAYOR Ponce, PR
$800,000
67308252 Pies Cuadrados
Cerrado
6951 REINA ISABEL STE. 101 #3a Ponce, PR
$3,500
3 Cuartos
2 Baños
2471 Pies Cuadrados
Cerrado
RIO CANAS #2740 MISSISSIPPI Ponce, PR
$800
2 Cuartos
1 Baños
730 Pies Cuadrados
Resources
>