CARR. 414 KM 1.8 INT THE TERRACES Rincón, Puerto Rico

Property Type: Residential
Subtype: Single Family Residence
Status: Active
9
Rooms
5.2
Baths
$2,300,000
Sale
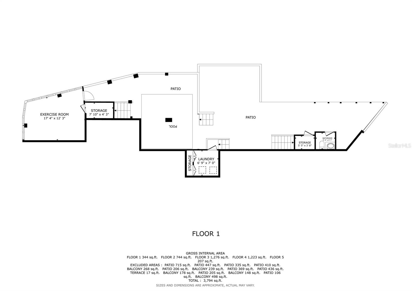
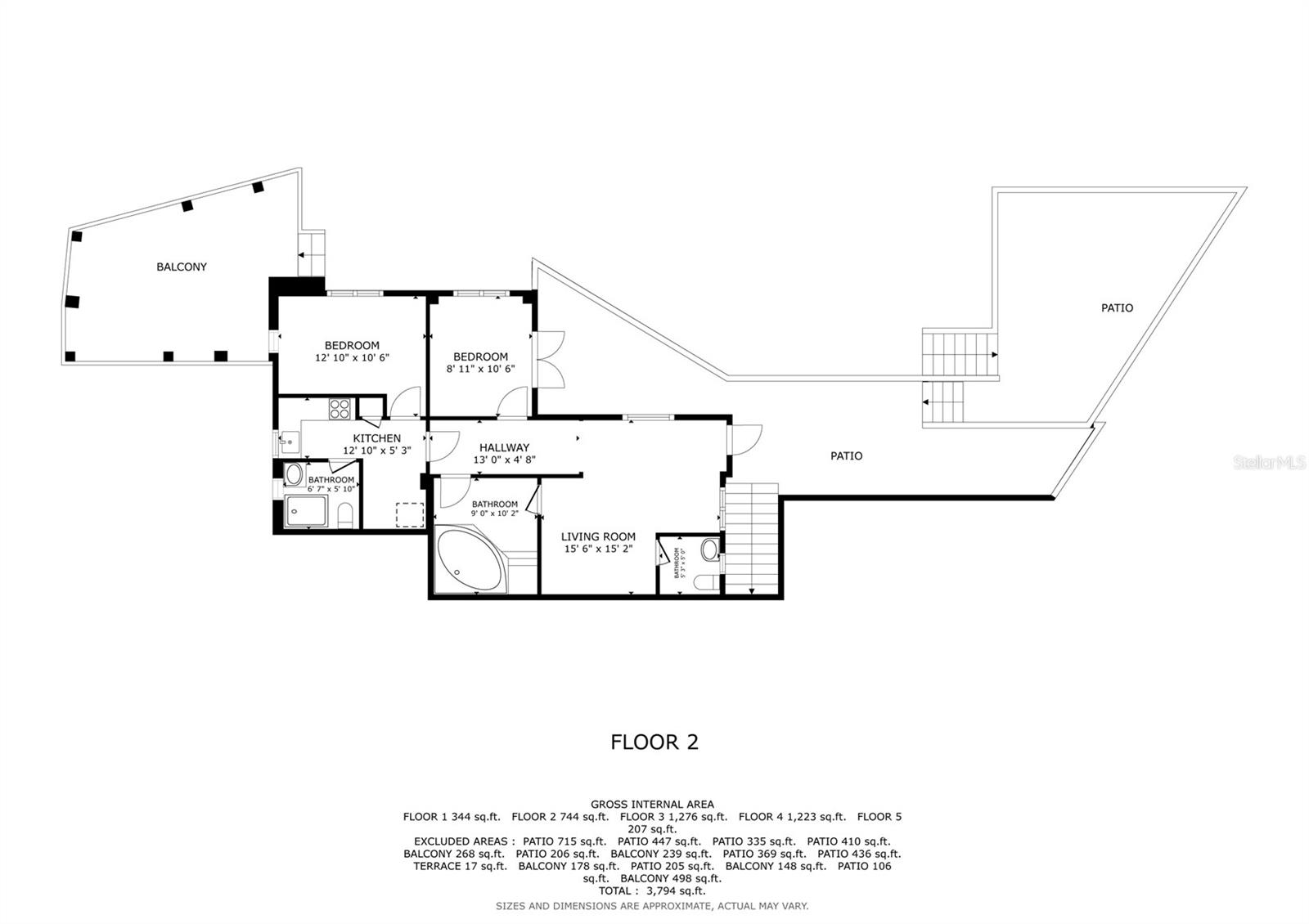
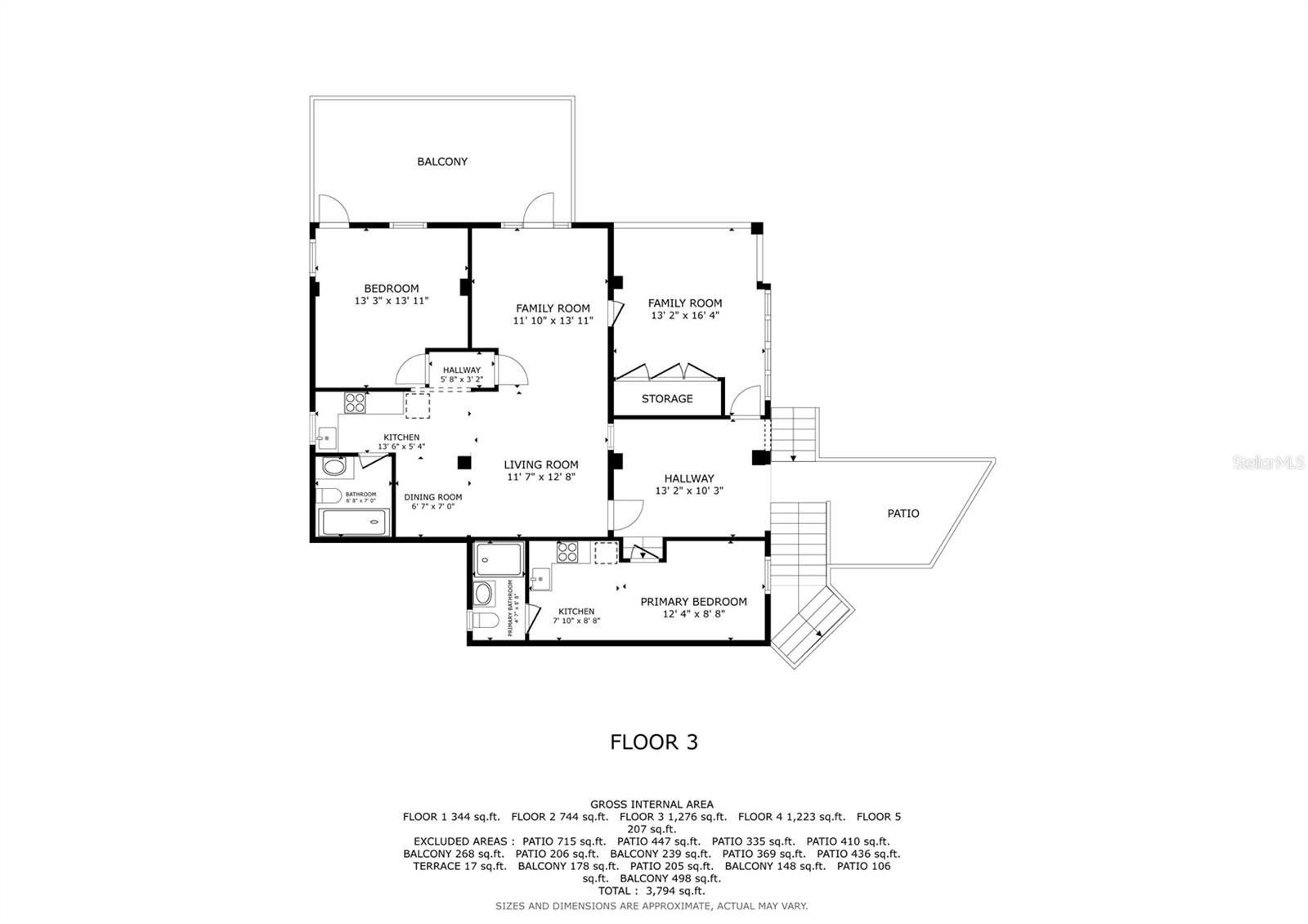
The Terraces at Rincón is a distinctive multi-level hillside property of 8,371 SF designed for strong income performance. Situated on a 418 square-meter lot, it features five private suites across six levels and offers unobstructed 360° views of the Caribbean Sea, the Atlantic Ocean, and Mount Atalaya. Configured to support multi-family use, retreat hosting, and both short- and long-term rental operations, the estate includes five kitchenettes, five full baths, two half baths, two outdoor showers, a laundry area, and parking for five vehicles. Income-driven amenities elevate the guest experience, including a rooftop viewing deck, a jetted spa-style pool with soothing waterfall features, an air-conditioned fitness studio, lush tropical gardens, and multiple outdoor areas for dining, lounging, and quiet reflection. The design thoughtfully blends tropical, Zen-inspired elements with warm Mediterranean and Spanish Colonial touches. Terracotta-style flooring, handcrafted tile accents, stucco textures, rustic wood details, and ironwork railings appear throughout, while expansive windows, open-air corridors, and numerous terraces maximize natural light, ocean breezes, and seamless indoor–outdoor living. The property exudes the charm and serenity of a boutique hillside retreat. Multiple terraces, treetop decks, shaded seating areas, and covered patios create inviting spaces to pause, relax, and savor the signature panoramic vistas. Its elevated setting ensures privacy, tranquility, and uninterrupted ocean-to-mountain views—an experience that resonates with guests seeking both adventure and rejuvenation. Ideally located just minutes from Rincón’s best beaches—including world-famous surf breaks on the Atlantic and tranquil snorkeling coves along the Caribbean—the property also offers quick access to restaurants, the town plaza, grocery stores, and local culture. The combination of prime location, resort-style amenities, and versatile multi-suite configuration positions The Terraces at Rincón as not only a highly desirable investment opportunity but also a place where guests can create lasting memories in one of Puerto Rico’s most coveted coastal markets
Address: CARR. 414 KM 1.8 INT THE TERRACES Rincón, Puerto Rico 00677

Additional Details

Interior

Total Bedrooms
9
Full Bathrooms
5
Half Bathrooms
2
Laundry
Laundry Room
Flooring
Ceramic Tile, Tile
Appliances
Microwave, Range, Refrigerator, Solar Hot Water, Washer
Other Interior Features
Ceiling Fans(s), Eat-in Kitchen, Open Floorplan, Solid Surface Counters

Exterior

Stories
6
Construction Materials
Concrete
Parking
Common
Cooling
Mini-Split Unit(s)
Vegetation
Fruit Trees, Mature Landscaping
Other Exterior Features
Balcony, Garden, Lighting, Outdoor Grill, Outdoor Shower, Storage

Rooms

Upper Floor
Bathroom 1, Primary Bedroom, Bathroom 2, Bedroom 2, Bedroom 3, Living Room, Kitchen, Kitchen
Second Floor
Studio, Bathroom 3, Bedroom 4, Bedroom 5, Bathroom 4
Third Floor
Bedroom 5, Bathroom 5

General

Days on Market
65

Area and Lot

Lot Size in Acres
0.1
Living Area in SQFT
3794
Architectural Style
Coastal, Mediterranean
Utilities
Cable Connected, Electricity Connected, Public, Water Connected
View
Mountain(s), Trees/Woods, Water

Financial

Annual Tax
$2,124
HOA Fees
$0

Location

From Rincón’s Plaza, head east on PR-115 and turn left onto PR-413 toward Puntas. Continue on PR-413 for approx. 1 mile, then turn right onto PR-414. Follow PR-414 to KM 1.8 and turn onto the interior road at that marker. Continue uphill following the road to the property.

Interested in this property? Get in touch

Alexandra Esteva

License: #21684
1055 Ashford Ave
San Juan Puerto Rico, 00907

Newly Added on Same Area

Active
373 CALLE FRANCISCO COLON GUERRA BO PUEBLO Rincón, PR
$650,000
5 Beds
3 Bath
5158 SQFT
Active
413 Km. 5.9 Int. BO ENSENADA SOLAR G CARRETERA Rincón, PR
$3,500
3 Beds
2 Bath
26109 SQFT
Active
Km 15 H 7 PR 115 VILLA LA JOLLA Rincón, PR
$1,500,000
3 Beds
4 Bath
159932 SQFT
Active
Cambija CAMBIJA #1D Rincón, PR
$599,000
2 Beds
2 Bath
1013 SQFT
Active
17 CLL MUÑOZ RIVERA Rincón, PR
$850,000
Active
PR-115 ENSENADA WARD RINCON WAVE VIEW #1B Rincón, PR
$450,000
2 Beds
1 Bath
906 SQFT

Recently Sold on Same Area

Closed
10 SEA BEACH COLONY Rincón, PR
$508,000
3 Beds
3 Bath
4987 SQFT
Closed
Calle Coqui SR 412, KM 4.9 - SOLAR #1 Rincón, PR
$385,000
2 Beds
1 Bath
30492 SQFT
Closed
Rincón, PR
$450,000
5 Beds
3.1 Bath
23250 SQFT
Closed
112 CAMBIJA #B 113 Rincón, PR
$300,000
2 Beds
1 Bath
19747 SQFT
Closed
Benajmin Gomez 11 CALLE BENJAMIN GOMEZ Rincón, PR
$550,000
2 Beds
2 Bath
3560 SQFT
Closed
115 CALLE PRINCIPAL Rincón, PR
$950
3 Beds
1 Bath
1000 SQFT
Resources
>