HS-58 ROSARIO ARUTI ST. LEVITTOWN LAKES Toa Baja, Puerto Rico

Property Type: Residential Income
Subtype: Quadruplex
Status: Closed
7
Rooms
Baths
$300,000
Sale
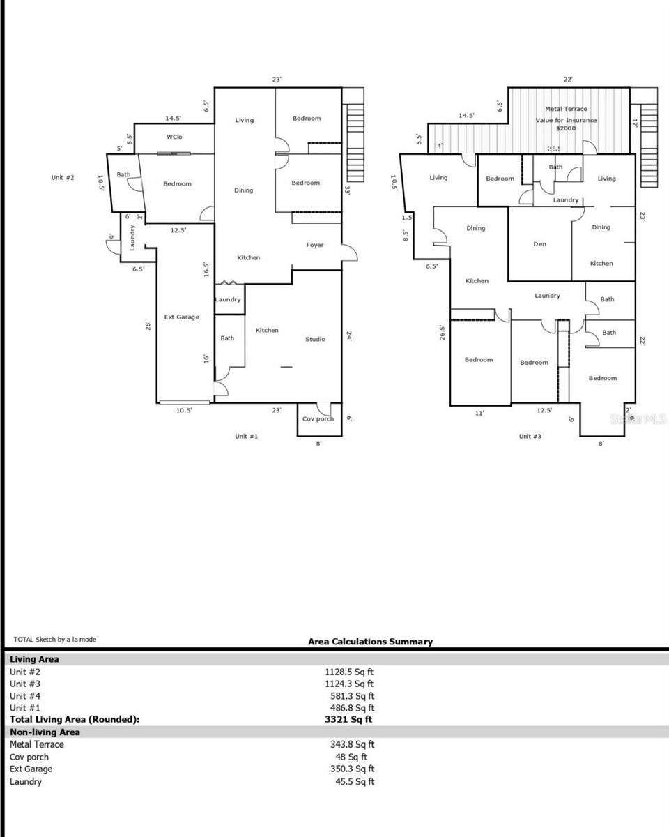
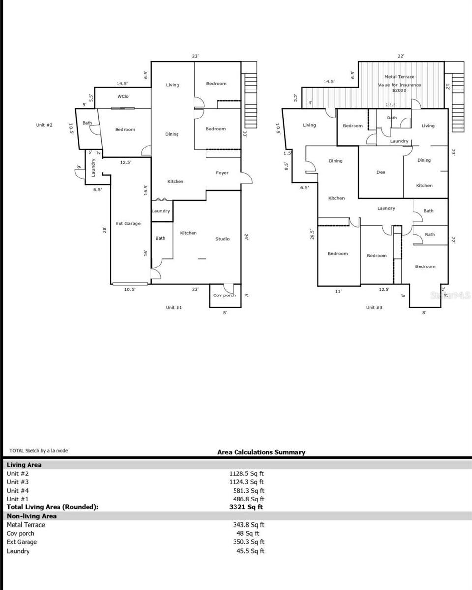
Multi-family building with 4 units, one electricity meter and one water meter for all units. First Level: Unit #1: Studio, kitchen, 1 bathroom, laundry room, and extended garage for 1 car. Unit #2: 3 bedrooms, kitchen, bathroom, living/dining room, and pantry. Second Level: Unit #3: 2 bedrooms, 1 bathroom, kitchen, living room, and laundry room. Unit #4: 3 bedrooms, 2 bathrooms, kitchen, living room, dining room, and laundry room. Aluminum roof on the second floor. The property has a solar panel lease.
Address: HS-58 ROSARIO ARUTI ST. LEVITTOWN LAKES Toa Baja, Puerto Rico 00949

Additional Details

Interior

Total Bedrooms
7
Laundry
Common Area, Laundry Room

Exterior

Construction Materials
Block, Concrete
Garage Space
2
Cooling
Mini-Split Unit(s)
Other Exterior Features
Balcony, Fence, Garden

General

Garage
Yes

Area and Lot

Lot Size in Acres
0.11
Living Area in SQFT
3321
Utilities
Electricity Connected, Water Connected

Financial

Annual Tax
$0
HOA Fees
$0

Location

Take the ramp to San Juan/Bayamón, merge onto Auto José de Diego (PR22), Take exit 13 toward Bayamón/ Comerio (PR 167), Take Right onto Ave. Comerio/ PR 167, Take left onto Ave. Ferrer/PR 867, Take left onto Antonio Paoli st., Take right onto Amalia Paoli st., Take left onto PR 866, Take right onto José Perreira st. and take right onto Rosario Aruti st.

Newly Added on Same Area

Active
Diana st SE-8 URB LEVITTOWN LAKES Toa Baja, PR
$195,000
3 Beds
2 Bath
2507 SQFT
Active
Mansion del Mar MM65 PASEO NAUTICO Toa Baja, PR
$355,000
3 Beds
2.1 Bath
3162 SQFT
Pending
MAGALY LEVITTOWN #AI-17 Toa Baja, PR
$175,000
3 Beds
2 Bath
3593 SQFT
Active
7061 VIA PLAYERA CAMINO DEL MAR Toa Baja, PR
$500,000
4 Beds
2.1 Bath
452 SQFT
Active
Urb. Villas de Levittown CALLE 1 B9 Toa Baja, PR
$349,000
4 Beds
4 Bath
2364 SQFT
Active
CALLE 8 URB COVADONGA IN3 Toa Baja, PR
$380,000
3459 SQFT

Recently Sold on Same Area

Closed
9A EL PLANTIO DEV. #L #15 A Toa Baja, PR
$1,500
3 Beds
2.1 Bath
2252 SQFT
Closed
CALLE 7 #428 Toa Baja, PR
$160,000
3 Beds
1 Bath
3767 SQFT
Closed
HG 81 AMALIA PAOLI AVE Toa Baja, PR
$999
2 Beds
1 Bath
3468 SQFT
Closed
Carr. 865 R Km 19.9 BO. CANDELARIA Toa Baja, PR
$115,000
Closed
Calle 1 VILLAS DE LEVITTOWN #A12 Toa Baja, PR
$225,000
4 Beds
3 Bath
2131 SQFT
Closed
3455 PASEO COSTA Toa Baja, PR
$170,000
4 Beds
2 Bath
10780 SQFT
Resources
>