Carr 149 R643 KM 2.2 INT Manatí, Puerto Rico

Tipo de Propiedad: Residencial
Subtipo: Single Family Residence
Estado: Activo
7
Cuartos
2
BaÑos
$198,000
Venta
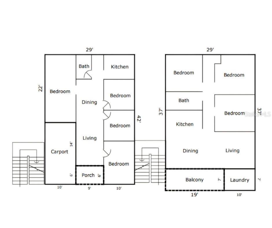
Multi-family residence located at Carr. 149 R643 Km 2.2 Int., Manatí, PR 00674. Two-story property featuring a spacious and functional layout that allows for efficient use of interior space. First level: 4 bedrooms and 1 full bathroom Second level: 3 bedrooms and 1 full bathroom The structure sits on an approximately 781 square meter lot, offering usable outdoor areas. Property has one water meter and one electric meter, allowing for simplified service management. Located near a baseball park, in a residential area with convenient access to main roads, shopping, and essential services in the Manatí area. Information subject to verification of measurements, zoning, taxes, and applicable permits.
Dirección: Carr 149 R643 KM 2.2 INT Manatí, Puerto Rico 00674

Detalles Adicionales

Interior

Total de Cuartos
7
Baños Completos
2
Lavanderia
Laundry Room
Pisos
Ceramic Tile
Otros Detalles
Ninguno

Exterior

Materiales de Construcción
Concrete
Espacio de Garaje
1
Otros Detalles
Balcony

Cuartos

First Piso
Primary Bedroom, Kitchen, Living Room

General

Dias en el Mercado
7
Garaje

Área y Terreno

Tamaño del Terreno en Acres
0.19
Área Habitable en Pies Cuadrados
1073
Utilidades
Electricity Connected

Inversión

Tax Anual
$0
Costos de HOA
$0

Localización

Follow Autop. José de Diego/PR-22 to Carretera 149/PR-149 in Manatí. Exit from Autop. José de Diego/PR-22 22 min (36.0 km) ? Continue on Carretera 149/PR-149. Drive to C. 3 14 min (10.1 km) Continue onto Carretera 149/PR-149 ? 7.8 km Turn left onto PR-643 ? 2.2 km Turn left onto C. 3 ? Destination will be on the left

¿Interesado en la Propiedad? Comunicate

Ida Maldonado Rivera

Licencia: #23506
612 Aldebaran St.
San Juan Puerto Rico, 00920
Teléfono: 787-512-2398

Nuevos Listados en la Misma Área

Activo
8 CALLE BETANCES Manatí, PR
$565,000
6 Cuartos
2680 Pies Cuadrados
Activo
PR-604 LOS RABANOS KM 3.5 Manatí, PR
$399,000
82887 Pies Cuadrados
Activo
PR-686 INT. PR-2 Manatí, PR
$2,000,000
430000 Pies Cuadrados
Activo
SECTOR ALTAGRACIA 8A BO COTTO NORTE Manatí, PR
$68,000
11017 Pies Cuadrados
Pendiente
201 CALLE ZEUS. URBANIZACION MANATI CHALETS #3 Manatí, PR
$290,000
4 Cuartos
2 Baños
6469 Pies Cuadrados
Activo
686 URB. REPARTO ROSELLO #67 Manatí, PR
$400,000
26910 Pies Cuadrados

Recientemente Vendido en la Misma Área

Cerrado
A-6 JOSE J ACOSTA Manatí, PR
$170,000
4 Cuartos
3 Baños
3304 Pies Cuadrados
Cerrado
686 st BO. GUAYANEY KM 1.8 Manatí, PR
$144,000
3 Cuartos
2.1 Baños
12254 Pies Cuadrados
Cerrado
A5 ACOSTA Manatí, PR
$215,000
7 Cuartos
4 Baños
4597 Pies Cuadrados
Cerrado
Calle olas URB PORTOFINO Manatí, PR
$400,000
4 Cuartos
3.1 Baños
5632 Pies Cuadrados
Cerrado
44.3 KM HM ST Manatí, PR
$400,000
8 Cuartos
6 Baños
Cerrado
LOLITA NATAL ST. COND. MAR CHIQUITA OCEAN VIEW #2 #B-201 Manatí, PR
$340,000
3 Cuartos
2 Baños
Resources
>