SR 307 km 7.9 Boqueron VILLA NAUTICA, UNION ST, JOSE ST BCH #Lot # 2 Cabo Rojo, Puerto Rico

Property Type: Residential
Subtype: Single Family Residence
Status: Active
4
Rooms
3
Baths
$895,000
Sale
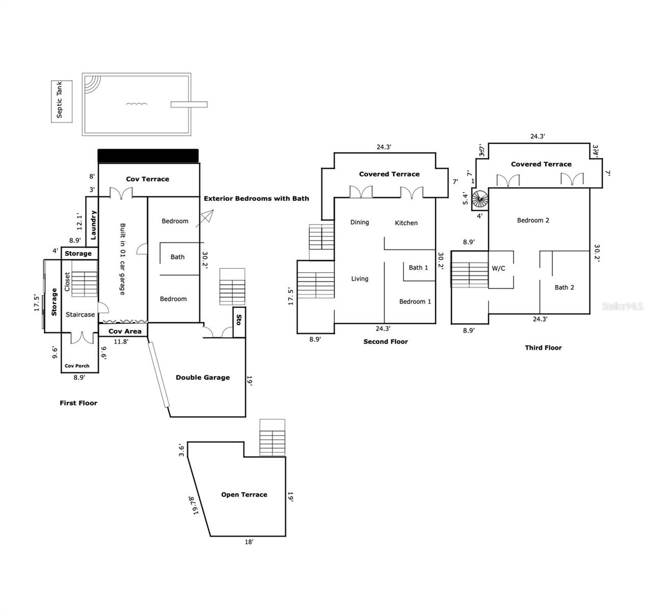
Discover a private coastal retreat in Boquerón, Puerto Rico 00622, where peace, ocean breezes, and elevated bay views define everyday living. Located at Lot-2 SR-307 Km 7.9 Interior, this three-level tropical villa sits on approximately 480 square meters of land and offers around 3,062 square feet of concrete construction, designed for durability and long-term value. Positioned on a hillside, the property enjoys open and unobstructed views toward Boquerón Bay, creating a natural sense of privacy, tranquility, and connection with the surrounding coastal environment. The layout is distributed across three levels, offering flexibility for living, entertaining, or extended guest use: • First Level: Direct access to a private outdoor terrace and in-ground swimming pool, ideal for relaxing in a quiet and peaceful setting. • Second Level: Functional living areas including kitchen, dining, bedrooms, and full bathroom. • Third Level: Elevated spaces with balcony views capturing the natural beauty of Boquerón and its coastal landscape. Additional features include multiple terraces, covered areas, storage spaces, and parking capacity for up to three vehicles. The property is located within a suburban coastal community just minutes from Boquerón Beach, restaurants, marinas, and outdoor recreational areas, while still maintaining a quiet residential atmosphere. Zoned RT-I (Residential Tourist Intermediate), this property offers long-term flexibility for residential or lifestyle-oriented use. This offering represents a strong opportunity for buyers seeking location, structure, and potential in one of Puerto Rico’s most desirable beach communities. Proof of funds or lender pre-approval is required prior to showings.
Address: SR 307 km 7.9 Boqueron VILLA NAUTICA, UNION ST, JOSE ST BCH #Lot # 2 Cabo Rojo, Puerto Rico 00622

Additional Details

Interior

Total Bedrooms
4
Full Bathrooms
3
Laundry
Inside
Flooring
Tile
Appliances
Convection Oven, Cooktop, Dishwasher, Dryer, Electric Water Heater, Gas Water Heater, Indoor Grill, Kitchen Reverse Osmosis System, Microwave, Range Hood, Refrigerator, Solar Hot Water, Washer, Water Filtration System, Water Purifier, Water Softener, Whole House R.O. System, Wine Refrigerator
Other Interior Features
Cathedral Ceiling(s), Ceiling Fans(s), High Ceilings, Living Room/Dining Room Combo, Open Floorplan, PrimaryBedroom Upstairs, Smart Home, Walk-In Closet(s), Wet Bar, Window Treatments

Exterior

Construction Materials
Brick, Cement Siding, Concrete
Garage Space
2
Cooling
Mini-Split Unit(s)
Other Exterior Features
Balcony, Dog Run, Hurricane Shutters, Lighting, Outdoor Grill, Outdoor Kitchen, Outdoor Shower, Private Yard, Rain Gutters, Sliding Doors, Storage

Rooms

Third Floor
Primary Bedroom 2, Balcony/Porch/Lanai, Bathroom 1
Second Floor
Bedroom 2, Kitchen, Living Room, Dining Room, Balcony/Porch/Lanai, Bathroom 2, Office
First Floor
Bathroom 3, Bedroom 3, Bedroom 4, Gym, Kitchen

General

Days on Market
108
Garage
Yes

Area and Lot

Lot Size in Acres
0.11
Living Area in SQFT
3062
Architectural Style
Contemporary, Elevated, Mediterranean
Utilities
Cable Available, Cable Connected, Electricity Available, Electricity Connected, Propane, Water Available, Water Connected
View
Garden, Mountain(s), Pool, Trees/Woods, Water

Financial

Annual Tax
$0
HOA Fees
$0

Location

From Rafael Hernández Airport (BQN), take PR-107 South toward Aguadilla. Merge onto PR-2 South toward Mayagüez. Continue on PR-2 until reaching the exit for PR-100 South toward Cabo Rojo. Follow PR-100 South and then take PR-307 toward Boquerón. Continue on PR-307 to Km 7.9 Interior. Turn into Union Street. Property is located at Lot #2, Villa Náutica, Boquerón Ward, Cabo Rojo, Puerto Rico. // Desde el Aeropuerto Rafael Hernández (BQN), tome la PR-107 hacia el sur en dirección a Aguadilla. Incorpórese a la PR-2 hacia el sur en dirección a Mayagüez. Continúe en la PR-2 hasta tomar la salida hacia la PR-100 sur en dirección a Cabo Rojo. Mantengaselos manejando en la PR-100 y luego tome la PR-307 en dirección a Boquerón. Continúe hasta el Km 7.9 Interior y entre a la Calle Unión. La propiedad está ubicada en el Solar #2, Villa Náutica, Barrio Boquerón, Cabo Rojo, Puerto Rico.

Interested in this property? Get in touch

Eddie Nieves Santiago

License: #15185
PO BOX 5258
MAYAGUEZ Puerto Rico, 00681

Newly Added on Same Area

Active
ST 307 KM 7.4 Cabo Rojo, PR
$3,600,000
161172 SQFT
Active
Sola 10 BO LLANOS COSTA Cabo Rojo, PR
$200,000
3 Beds
1 Bath
5283 SQFT
Active
SR 307 km 7.4 COND PASEO DEL MAR BOQUERON WARD #104 Cabo Rojo, PR
$1,300
2 Beds
2 Bath
225 SQFT
Active
SR 307 KM 7.0 VISTAMAR ST ESTANCIAS DE ALTA VISTA Cabo Rojo, PR
$789,900
3 Beds
3 Bath
10979 SQFT
Active
PARAISO DE BOQUERON Cabo Rojo, PR
$130,000
10 SQFT
Active
204 CAGUAX,VILLA TAINA #204 Cabo Rojo, PR
$1,800
2 Beds
1 Bath
660 SQFT

Recently Sold on Same Area

Closed
El combate EL COMBATE #401 Cabo Rojo, PR
$305,000
2 Beds
2 Bath
Closed
PR 307 KM 6.8 PARAISO DE BOQUERON Cabo Rojo, PR
$99,500
8675 SQFT
Closed
SR-101 km 18.1 COND. HACIENDA DE LA BAUME II #622 Cabo Rojo, PR
$279,900
3 Beds
2 Bath
1100 SQFT
Closed
21 BOQUERON COUNTRY CLUB #21 Cabo Rojo, PR
$2,300
3 Beds
3.1 Bath
6681 SQFT
Closed
101 CARR 101 KM 18.1 BOQUERÓN #512 Cabo Rojo, PR
$1,800
3 Beds
2 Bath
1264 SQFT
Closed
PR 307 KM 6.8 PARAISO DE BOQUERON #10 Cabo Rojo, PR
$79,000
8675 SQFT
Resources
>