7 CASTILLO STREET Ponce, Puerto Rico

Property Type: Residential
Subtype: Villa
Status: Active
6
Rooms
2
Baths
$450,000
Sale
Located in the traditional “Ciudad Ideal” of Ponce, just steps from its iconic historic district, this architectural gem in Puerto Rico is a property that evokes the residential charm of the late 1920s and early 1930s. Set on an expansive 912m2 lot and featuring a solid construction of approximately 4,785 square feet of reinforced concrete, this two-story residence seamlessly combines character, history, and durability. Its high ceilings, reaching nearly 10 feet, along with distinctive finishes in creole tile, terrazzo, and ceramic, enhance its authenticity and timeless elegance. The interior layout, both spacious and versatile, offers multiple bedrooms, living areas, dining rooms, and kitchens on both levels—reflecting the stately lifestyle of its era while providing exceptional potential for residential, multifamily, or investment use. Strategically located near schools, shops, churches, and employment centers, and free from adverse external factors that could impact its value, this property represents a rare opportunity to acquire a piece of architecture with history, character, and a unique presence in Puerto Rico’s real estate market.
Address: 7 CASTILLO STREET Ponce, Puerto Rico 00730

Additional Details

Interior

Total Bedrooms
6
Full Bathrooms
2
Laundry
Common Area, Laundry Room
Flooring
Ceramic Tile, Terrazzo
Other Interior Features
Ninguno

Exterior

Construction Materials
Block, Cement Siding, Concrete
Other Exterior Features
Awning(s), Balcony, French Doors, Sidewalk, Storage

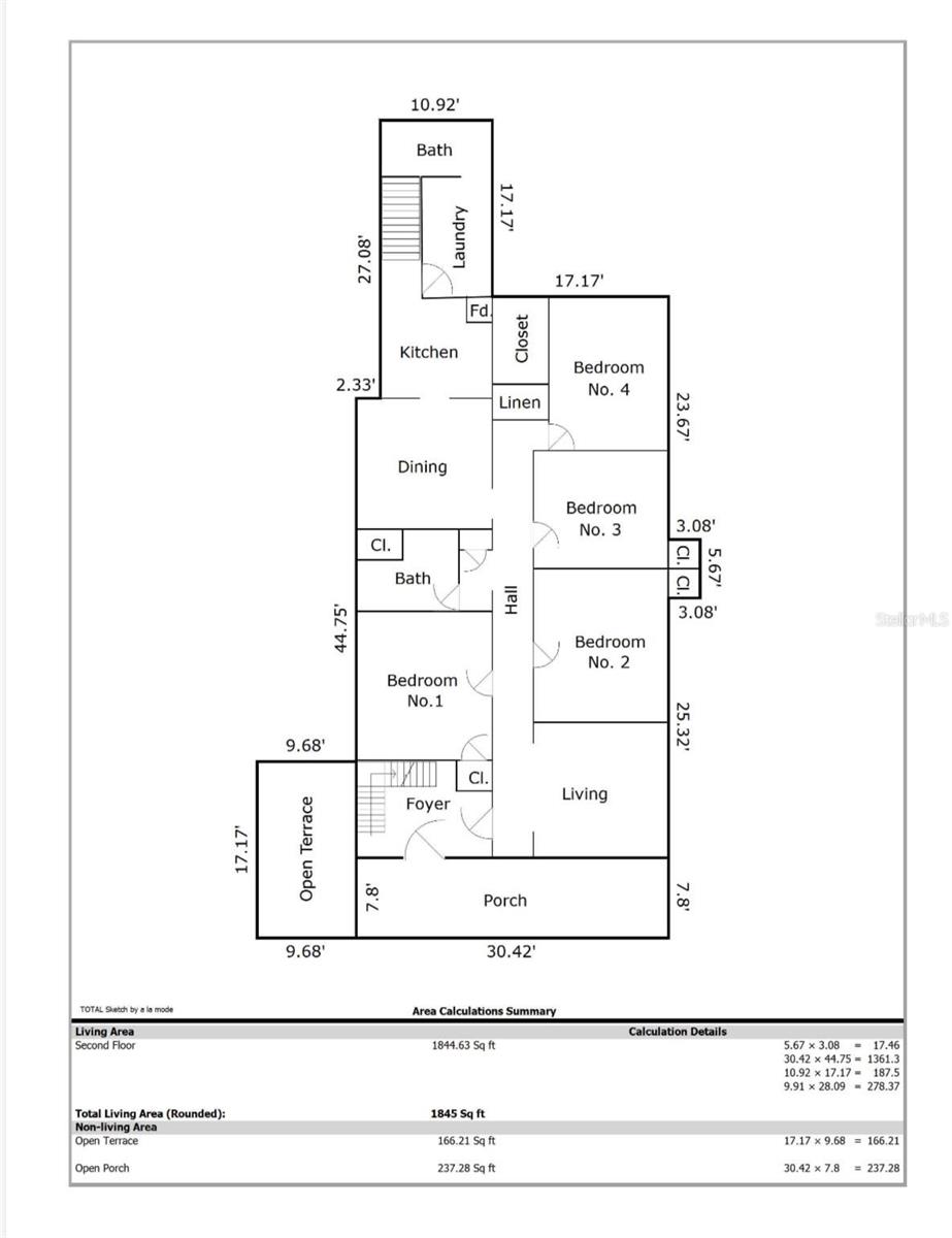
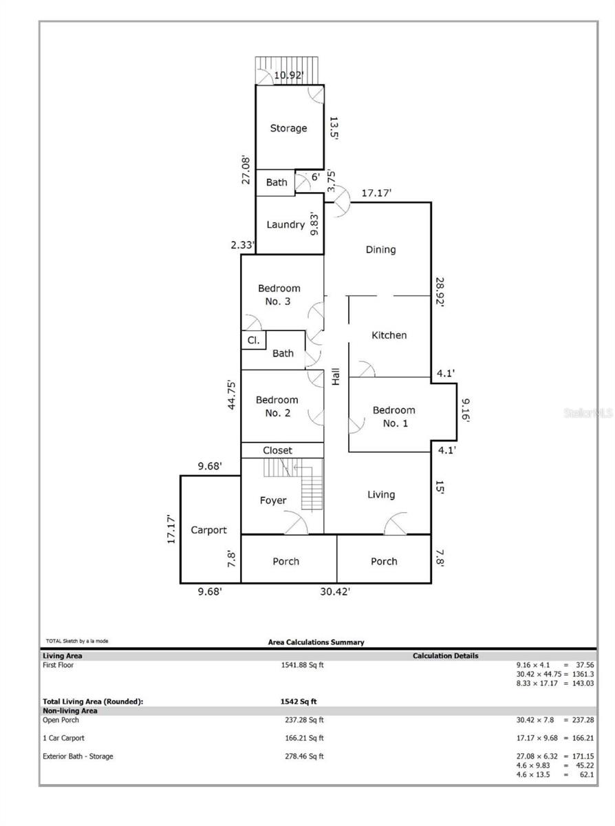
Rooms

First Floor
Primary Bedroom, Primary Bedroom, Kitchen, Bedroom 1, Bedroom 2
Second Floor
Bedroom 3, Bathroom 4, Bathroom 5, Kitchen, Balcony/Porch/Lanai, Dining Room, Living Room

General

Days on Market
25

Area and Lot

Lot Size in Acres
0.22
Living Area in SQFT
3387
Utilities
Electricity Connected, Public, Water Connected
View
City

Financial

Annual Tax
$3,035
HOA Fees
$0

Location

Directions from PR-52: 1. Take PR-52 (Luis A. Ferré Expressway) heading toward Ponce. 2. Take the exit toward PR-1 in the direction of Ponce Centro. 3. Continue on PR-1 for approximately 1.0–1.5 km. 4. Turn right onto Avenida Miguel Pou (Boulevard). 5. Continue straight; the road becomes Calle Reina. 6. Turn right onto Calle Salud (PR-14). 7. Then turn left onto Calle Castillo. 8. Continue a short distance until you reach #7 Calle Castillo, Ponce, Puerto Rico. Estimated driving time from the PR-52 exit: 5–8 minutes Centrally located near downtown Ponce and the historic district.

Interested in this property? Get in touch

Francisco Sosa

License: #20215
P.O. Box 34
Mercedita Puerto Rico, 00715

Newly Added on Same Area

Active
6108 CALLE TORRES CONDOMINIO ANTONSANTTI #301 Ponce, PR
$1,500
3 Beds
1 Bath
21527 SQFT
Active
6108 CALLE TORRES CONDOMINIO ANTONSANTTI #306 Ponce, PR
$1,400
2 Beds
1 Bath
800 SQFT
Pending
1 STARLIGHT Ponce, PR
$175,000
3 Beds
1 Bath
25 SQFT
Active
6108 CALLE TORRES EDIFICIO ANTONSANTTI #204 Ponce, PR
$1,500
3 Beds
1 Bath
800 SQFT
Active
2844 ROOSEVELT #208 Ponce, PR
$950
1 Beds
1 Bath
538 SQFT
Active
APTO 1202 COND ALBORADA Ponce, PR
$3,500
3 Beds
2 Bath
17823 SQFT

Recently Sold on Same Area

Closed
6108 CALLE TORRES EDIFICIO ANTONSANTTI #107 Ponce, PR
$1,600
3 Beds
1 Bath
21527 SQFT
Closed
8138 201 CALLE MARTIN CORCHADO Ponce, PR
$825
2 Beds
1 Bath
3797 SQFT
Closed
8138 CALLE MARTIN CONCHADO 102 Ponce, PR
$825
2 Beds
1 Bath
3797 SQFT
Closed
33B URB SANTA TERESITA Ponce, PR
$1,000
3 Beds
1 Bath
4552 SQFT
Closed
2325 UNIVERDIDAD STREET #2302 Ponce, PR
$175,000
3 Beds
2 Bath
1352 SQFT
Closed
6118 CALLE TORRES/ COND. ANTONSANTTI #102 Ponce, PR
$1,400
2 Beds
1 Bath
700 SQFT
Resources
>