3rd Floor PUNTA LIBERTAD CONDOMINIO #3 Rincón, Puerto Rico

Property Type: Residential
Subtype: Condominium
Status: Active
3
Rooms
2
Baths
$698,000
Sale
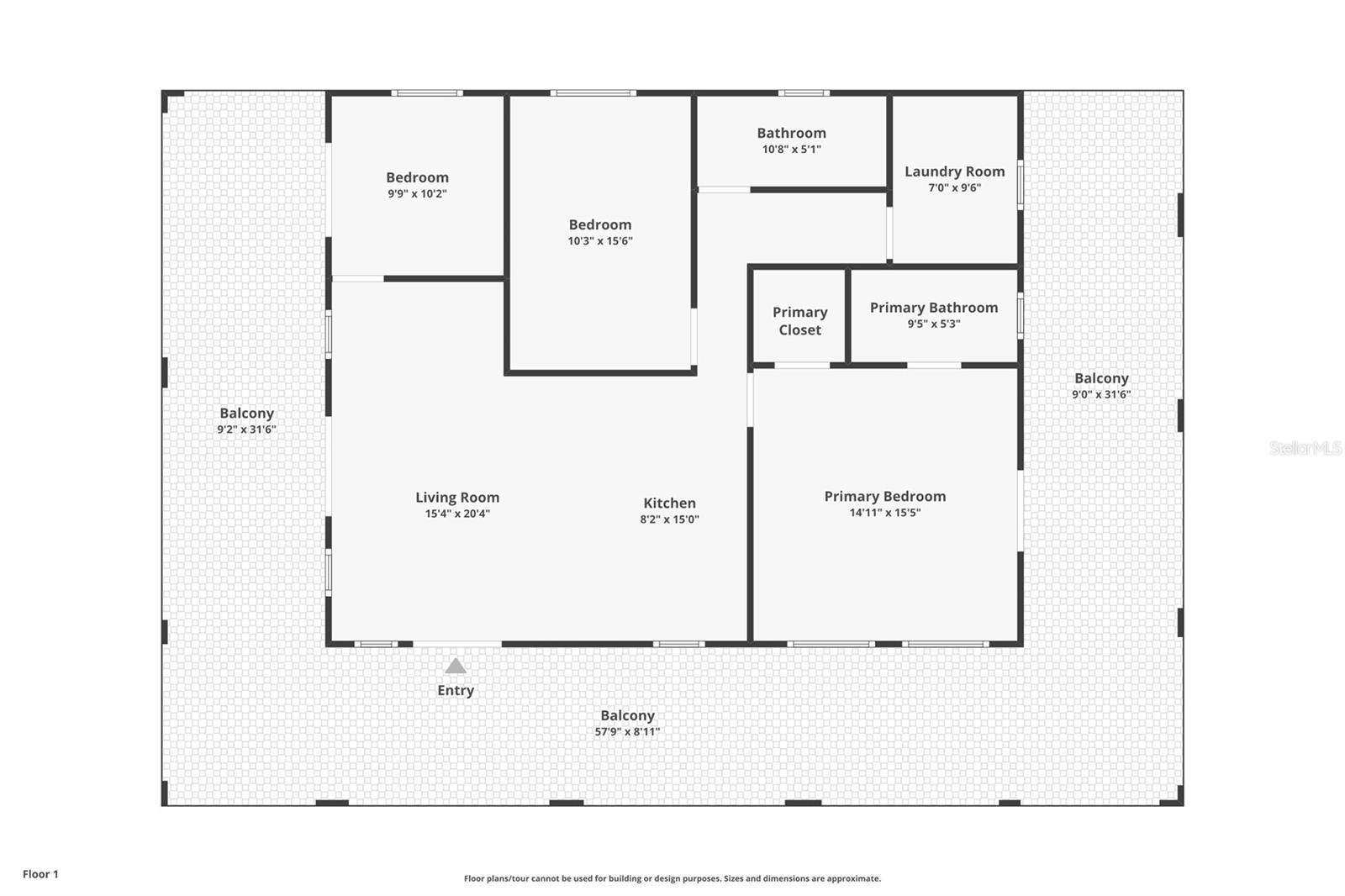
Perched above the shoreline this expansive 3 bedroom, 2 bath 2,310 SqFt (including interior and covered balcony) condo offers a blend of elegance, comfort and breathtaking natural beauty. With a 3/4 wrap around covered balcony you'll enjoy incredible ocean views plus views of the lush valley below. With windows and sliding glass doors throughout the condo the interior is flooded with natural light all day long. The open layout of the kitchen, dining room and living room allows for spectacular views throughout. The primary bedroom is a true retreat offering ample room for a king size bed, it's own access to the balcony, plus it's own en-suite bathroom and walk in closet. The additional bedrooms are extremely versatile - perfect for guests, a home office or family living- each with large windows that invite the natural light and coastal breezes. The second bathroom is conveniently located next to the larger of the 2 guest rooms and right next to the very spacious laundry room which offers plenty of storage and even room for cistern. Additional features include the beautifully designed pool with outdoor shower plus his and her 1/2 bathrooms on the bottom level and the gated parking lot where you'll have 2 designated parking spots. This condominium complex only has 4 levels and only one condo on each floor making this a serene coastal sanctuary where luxury meets everyday living. Qualified buyers only please. Coordinates: 18.3606, -67.2473
Address: 3rd Floor PUNTA LIBERTAD CONDOMINIO #3 Rincón, Puerto Rico 00677

Additional Details

Interior

Total Bedrooms
3
Full Bathrooms
2
Laundry
Laundry Room
Flooring
Tile
Appliances
Built-In Oven, Dryer, Microwave, Refrigerator, Washer
Other Interior Features
Ceiling Fans(s), Open Floorplan, Primary Bedroom Main Floor, Walk-In Closet(s)

Exterior

Stories
4
Construction Materials
Concrete
Cooling
Wall/Window Unit(s)
Other Exterior Features
Balcony, Outdoor Shower

Rooms

First Floor
Primary Bedroom, Living Room, Kitchen

General

Days on Market
20
Pets Allowed
Cats OK, Dogs OK

Area and Lot

Lot Size in Acres
0.36
Living Area in SQFT
2310
Utilities
Electricity Connected, Water Connected
Community Features
Pool

Financial

Annual Tax
$0
HOA Fees
$425

Location

From the plaza of Rincon head North on PR-115 for about 2km, then take a sharp left onto PR-413. Continue on PR-413 for 1km, then take a right onto Sector Cuchillo Pina. Head downhill for about 180 meters then make another sharp left then drive another 180 meters and your destination will be on your left.

Interested in this property? Get in touch

Justin Turri

License: #24178
PO Box 700
Rincon Puerto Rico, 00677

Newly Added on Same Area

Active
Km 15 H 7 PR 115 VILLA LA JOLLA Rincón, PR
$1,500,000
3 Beds
4 Bath
159932 SQFT
Active
Cambija CAMBIJA #1D Rincón, PR
$599,000
2 Beds
2 Bath
1013 SQFT
Active
17 CLL MUÑOZ RIVERA Rincón, PR
$850,000
Active
PR-115 ENSENADA WARD RINCON WAVE VIEW #1B Rincón, PR
$450,000
2 Beds
1 Bath
906 SQFT
Active
Unit 602 CALLE CAMBIJA #602 Rincón, PR
$595,000
2 Beds
2 Bath
Active
2244 REPARTO MATIAS Rincón, PR
$550,000
3 Beds
2 Bath
5904 SQFT

Recently Sold on Same Area

Closed
10 SEA BEACH COLONY Rincón, PR
$508,000
3 Beds
3 Bath
4987 SQFT
Closed
Calle Coqui SR 412, KM 4.9 - SOLAR #1 Rincón, PR
$385,000
2 Beds
1 Bath
30492 SQFT
Closed
Rincón, PR
$450,000
5 Beds
3.1 Bath
23250 SQFT
Closed
112 CAMBIJA #B 113 Rincón, PR
$300,000
2 Beds
1 Bath
19747 SQFT
Closed
Benajmin Gomez 11 CALLE BENJAMIN GOMEZ Rincón, PR
$550,000
2 Beds
2 Bath
3560 SQFT
Closed
115 CALLE PRINCIPAL Rincón, PR
$950
3 Beds
1 Bath
1000 SQFT
Resources
>