16 CARRION COURT #43 San Juan, Puerto Rico

Property Type: Residential Lease
Subtype: Condominium
Status: Active
3
Rooms
2.1
Baths
$6,950
Rent
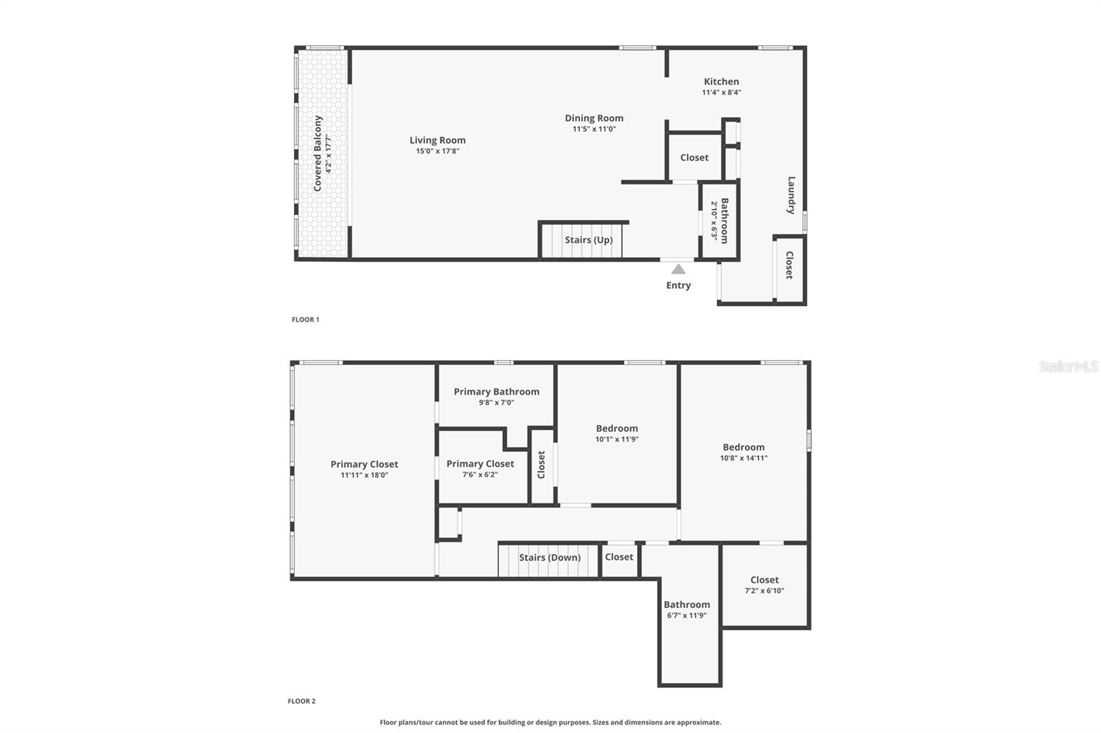
CARRIÓN COURT 16 | FULLY REMODELED PRIVATE BEACHSIDE RESIDENCE FOR RENT Located on the highly desirable Carrión Court Street in Ocean Park, this beautifully renovated residence offers 1,750 square feet of living space, thoughtfully designed with 3 bedrooms and 2.5 bathrooms. Recently completed, the property has undergone a full remodel, offering a fresh, modern feel with updated finishes throughout The residence features spacious living and dining areas, a well-appointed kitchen, and generously sized bedrooms. Natural light fills the interiors, creating a bright and inviting atmosphere that complements its coastal setting. Tucked within a gated residential street with controlled access, this home provides an added layer of privacy and security, accessible exclusively to residents. Perfectly positioned just steps from the beach, you’ll enjoy one of San Juan’s most sought-after neighborhoods, known for its walkability, charm, and proximity to top restaurants, schools, and entertainment. A rare opportunity to live in a quiet, private street in Ocean Park, just moments from the ocean.
Address: 16 CARRION COURT #43 San Juan, Puerto Rico 00907

Additional Details

Interior

Total Bedrooms
3
Full Bathrooms
2
Half Bathrooms
1
Laundry
In Kitchen
Appliances
Built-In Oven, Cooktop, Dishwasher, Dryer, Washer, Wine Refrigerator
Other Interior Features
Other

Exterior

Stories
2
Garage Space
1
Heating
Other
Cooling
Central Air

Rooms

Second Floor
Primary Bedroom, Primary Bathroom
First Floor
Kitchen, Dining Room, Living Room

General

Garage
Yes
Pets Allowed
Yes

Area and Lot

Lot Size in Acres
0.04
Living Area in SQFT
1750
Community Features
Gated Community - No Guard

Financial

Annual Tax
$0
HOA Fees
$0

Location

Calle Carrion Court 16, dentro del gate.

Interested in this property? Get in touch

Juan Woychejoski

License: #V-4046
1055 Ashford Ave
San Juan Puerto Rico, 00907

Newly Added on Same Area

Active
1802 MCLEARY #701 San Juan, PR
$3,950
2 Beds
1 Bath
Active
162 SAN JORGE #601 San Juan, PR
$545,000
2 Beds
2 Bath
1252 SQFT

Recently Sold on Same Area

Closed
San Juan, PR
$135,000
3 Beds
2 Bath
1 SQFT
Resources
>