7 CALLE OPALO Aguadilla, Puerto Rico

Property Type: Residential
Subtype: Single Family Residence
Status: Active
4
Rooms
4.1
Baths
$390,000
Sale
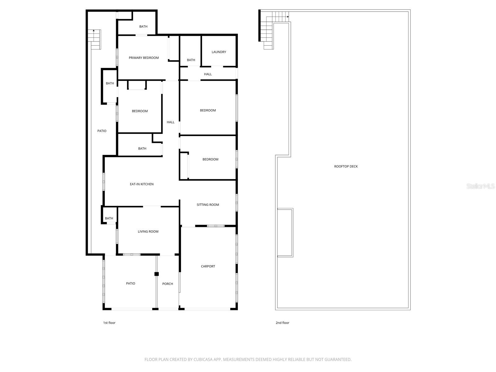
Discover the perfect blend of comfort, location, and investment potential in this beautiful 4-bedroom, 4.5-bathroom home in Aguadilla, an up-and-coming city on the west coast of Puerto Rico. Ideally situated just 5 minutes from the crystal-clear waters of Crash Boat Beach, this property offers the ultimate coastal lifestyle. Convenience is at your doorstep, with the Rafael Hernández Airport, golf courses, top-rated restaurants, and some of Puerto Rico’s most famous surfing beaches all less than 15 minutes away. Whether you're catching a flight, enjoying a round of golf, or chasing world-class waves, everything you need is within easy reach. This spacious residence is designed for both relaxed living and entertaining, featuring generously sized bedrooms, each with its own bathroom, plus an additional half bath for guests. The layout provides comfort and flexibility for families or visitors alike. Whether you're searching for your forever home, a vacation retreat, or a smart investment property, this property and its location offers limitless potential.
Address: 7 CALLE OPALO Aguadilla, Puerto Rico 00603

Additional Details

Interior

Total Bedrooms
4
Full Bathrooms
4
Half Bathrooms
1
Laundry
Laundry Closet
Flooring
Ceramic Tile
Appliances
Dryer, Microwave, Range, Refrigerator, Washer
Other Interior Features
Ceiling Fans(s), Eat-in Kitchen, Primary Bedroom Main Floor

Exterior

Construction Materials
Block, Concrete
Garage Space
2
Cooling
Mini-Split Unit(s)
Other Exterior Features
Balcony, Other, Private Entrance, Sidewalk, Storage

Rooms

First Floor
Primary Bedroom, Primary Bathroom, Bedroom 1, Bathroom 1, Bedroom 2, Bathroom 2, Bedroom 3, Bathroom 3, Bathroom 4, Kitchen, Living Room, Dining Room

General

Days on Market
1
Garage
Yes

Area and Lot

Lot Size in Acres
0.07
Living Area in SQFT
1600
Utilities
Electricity Connected, Water Connected

Financial

Annual Tax
$0
HOA Fees
$0

Location

From Mayaguez to Aguadilla on #2, Make a left at the light of Las Cascadas Waterpark. Make another left to Opalo street #7. Across from the basketball court.

Interested in this property? Get in touch

Jessica Fox

License: #22755
PO Box 1184
Rincon Puerto Rico, 00677

Newly Added on Same Area

Pending
Bo. Ceiba Alta BO. CEIBA ALTA Aguadilla, PR
$150,000
3 Beds
2 Bath
10058 SQFT
Pending
110 GRUBB DRIVE Aguadilla, PR
$450,000
4 Beds
2 Bath
4374 SQFT
Active
107 km 2.9 BO BORINQUEN EDIFICIO MANUEL GARCIA Aguadilla, PR
$300,000
Active
158 CALLE PROGRESO Aguadilla, PR
$529,900
8783 SQFT
Active
2 BO. BORINQUEN Aguadilla, PR
$650,000
2500 SQFT
Active
Suite 105 SUITE 105 AGUADILLA MEDICAL PLAZA CONDOMINIUM Aguadilla, PR
$185,000
960 SQFT

Recently Sold on Same Area

Closed
1 CAIMITAL ALTO Aguadilla, PR
$1,350
1 Beds
1 Bath
Closed
467 CAMASEYES Aguadilla, PR
$75,000
545 SQFT
Closed
#14 VILLA AURELIA CALLE MARLIN Aguadilla, PR
$795,000
4 Beds
2.2 Bath
7038 SQFT
Closed
121.8 MANUEL ALMEYDA #3 Aguadilla, PR
$850
2 Beds
1 Bath
800 SQFT
Closed
4 CALLE JOSE BARBOSA Aguadilla, PR
$65,000
1 Beds
1 Bath
1026 SQFT
Closed
Ext. Com. Cabán 602 BO. CORRALES Aguadilla, PR
$1,200
4 Beds
2 Bath
4510 SQFT
Resources
>