97 STATE ROAD 2 PUEBLO VIEJO Guaynabo, Puerto Rico

Property Type: Commercial Sale
Subtype: Mixed Use
Status: Active
$3,200,000
Sale
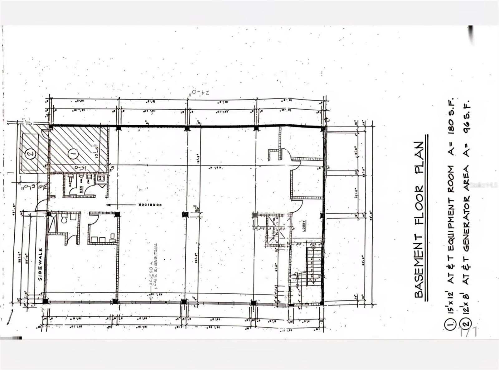
This property is a 10,656 square foot 3 story commercial building on a quarter acre lot in Guaynabo, Puerto Rico. The property is located on route 2 just 40 feet East of the Guaynabo/Bayamon border, a very highly traveled area that is an excellent location for commercial businesses. The building is structurally sound, well built, is currently empty, needs cleaning, remodel, and repairs with the most recent occupancy in 2024. An elevator and stairs in the building allows access between the floors with the elevator in need of repair. The property has 20 parking spaces and a Rooftop Cell Site that is separately owned. Each floor of the building is over 3300 square feet with flexible space design making it easy to accommodate, build and set up space for all different categories of tenants. The building can accommodate a huge array of businesses including, but not limited to, professional offices, medical clinics, retail locations, learning centers, food service, light manufacturing, churches, and more. : For the design of the building each floor of the three floors of the building has a center hallway going approximately 70 feet from the North side to the South side of the building. The elevator, main stairwell and entrance foyers are on the North side of each floor. The womens and mens public restrooms, an emergency exit, and emergency fire equipment are at the South end of the North/South hallway on each floor. The flex design can be applied to the East and West side of each floors' North/South hallway and with the flex design the floor configurations can be adjusted to a Buyer's and rental tenants' desires. With the current configuration the building has 4 different reception areas, 9 bullpen/conference room/assembly areas and 20 offices distributed among the floors. The current configuration could comfortably accommodate 14 different businesses but as mentioned this configuration can be changed to accommodate more or less businesses. The building also has a rooftop terrace that can be accessed from the top of the main stairwell at the North side of the building. The roof has a railing around the entire rooftop for safety and has views over the Bayamon/Guaynabo area to the hills of Puerto Rico. There is also a separately owned rooftop cell site and a storage room on the roof. The Guaynabo/Bayamon area where the building is located is one of the premier areas of Puerto Rico. Nestled in the heart of the San Juan metropolitan area, the area offers upscale suburban comfort, strategic location, and vibrant culture of Puerto Rico. Known for a high quality of life, top-rated bilingual schools, and secure neighborhoods, the Guaynabo/Bayamon area is one of the most sought-after residential and investment destinations on the island of Puerto Rico. The area boasts first-class amenities including luxury shopping centers, gourmet restaurants, boutique fitness studios, and exclusive country clubs. The area is also home to numerous health and wellness centers, including state-of-the-art hospitals and private clinics. All these amenities are less than 15 minutes from the property with some being within blocks of the property. For travel and commerce the property is close to air and ocean ports being just 3 1/2 miles from the Puerto Nuevo ocean ports, 5 miles from Isla Grande Airport and 10 miles from the San Juan International airport. The property is an ideal property in an ideal location to house many different diverse businesses.
Address: 97 STATE ROAD 2 PUEBLO VIEJO Guaynabo, Puerto Rico 00966

Additional Details

Interior

Flooring
Tile

Exterior

Construction Materials
Concrete
Parking
Common, Ground Level
Cooling
Central Air

General

Days on Market
1

Area and Lot

Lot Size in Acres
0.24
Living Area in SQFT
10656
Utilities
Electricity Available, Public, Water Connected

Financial

Annual Tax
$5,500
HOA Fees
$0

Location

From the intersection of route 20 and route 2 by the San Patricio Mall in Guaynabo, Puerto Rico proceed West on route 2 for about 1 1/4 miles. About 40 feet before the Guaynabo-Bayamon border the property will be on the left side.

Interested in this property? Get in touch

Michael McCarty

License: #11386
5870 Tartak St Box 24103
Carolina Puerto Rico, 00979

Newly Added on Same Area

Active
A31 INGENIERO ROBERTO ARANA ST Guaynabo, PR
$1,725,000
5 Beds
5 Bath
18184 SQFT
Active
Palma Real Avenue MURANO LUXURY APARTMENTS #8 Guaynabo, PR
$4,500
3 Beds
2.1 Bath
Active
B-9 ALTO APOLO ESTATES DEV. #B-9 Guaynabo, PR
$695,000
5 Beds
3.1 Bath
10034 SQFT
Active
40 CALLE 10 #7F Guaynabo, PR
$2,800
3 Beds
2 Bath
130 SQFT
Active
A2 MONTEBELLO ST Guaynabo, PR
$2,890,000
4 Beds
4.1 Bath
1139 SQFT
Active
E 11 REINA VICTORIA #E 11 Guaynabo, PR
$5,000
4 Beds
2.1 Bath

Recently Sold on Same Area

Closed
Cond Altavista II CALLE 1 #9A Guaynabo, PR
$385,000
2 Beds
2 Bath
Closed
Carr 833 PLAZA DEL PRADO #1204 Guaynabo, PR
$5,500
4 Beds
2.1 Bath
131427 SQFT
Closed
AVE. LOPATEGUI Guaynabo, PR
$100,000
483 SQFT
Closed
2736 AVE. LUIS VIGOREAUX #15-G Guaynabo, PR
$340,000
2 Beds
2 Bath
Closed
1019 AVE LUIS VIGOREAUX #PH-J Guaynabo, PR
$1,600
2 Beds
1.1 Bath
888 SQFT
Closed
13 PRINCIPAL #911 Guaynabo, PR
$2,500
3 Beds
2.1 Bath
1458 SQFT
Resources
>