![]() ![]() ![]() ![]() ![]() ![]() ![]() ![]() ![]() ![]() ![]()
Property Type:
Residential Lease
Subtype:
Condominium
Status:
Active
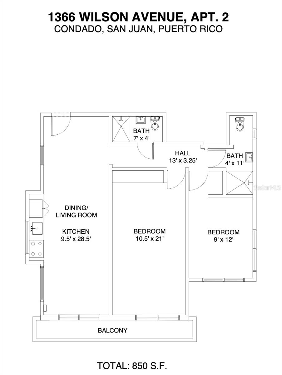
One or more photo(s) has been virtually staged. This spacious second-floor residence offers a bright and open layout with 2 bedrooms and 2 bathrooms with approximately 850 square feet of light and airy living space. Looking over the Condado skyline the apartment features a private Juliet balcony that spans from the bedroom into the main living area, creating a seamless indoor outdoor ambiance. This unit includes one enclosed garage parking space for added convenience and security.
Thoughtfully designed with a brighter, open feel, the residence is delivered fully furnished and turnkey. Modern finishes, all new appliances, imported Porcelanosa tile, and details throughout enhance both functionality and style, while the elevated position allows for an increase in natural light.
These units are delivered furnished, select images are enhanced using AI to showcase the full potential of the space and inspire how you can personalize it to reflect your own style and vision.
Location
Perfectly positioned in the heart of vibrant Condado, this residence offers an effortless lifestyle just moments from the beach, renowned restaurants, cafes, grocery stores, and premier entertainment. With quick access to major highways and only a 10 minute drive to the airport, the location seamlessly blends convenience with one of San Juan’s most desirable coastal settings.
As part of an exclusive six-unit collection, residents enjoy access to a beautifully maintained shared courtyard, offering a quiet and intimate atmosphere in the heart of the city—where the energy of urban living meets the privacy and serenity of a secluded oasis.
Address:
1366 WILSON AVE #2 San Juan, Puerto Rico 00907
Additional DetailsInteriorTotal Bedrooms 2 Full Bathrooms 2 Laundry Common Area Appliances Convection Oven, Refrigerator Other Interior Features Ninguno ExteriorStories 1 Garage Space 1 Cooling Mini-Split Unit(s) RoomsFirst Floor Bedroom 1, Bathroom 1, Bedroom 2, Bathroom 2, Kitchen, Living Room GeneralDays on Market 2 Garage Yes Pets Allowed Monthly Pet Fee Area and LotLot Size in Acres 0.2 Living Area in SQFT 850 Community Features Gated Community - No Guard FinancialAnnual Tax $0 HOA Fees $0 Interested in this property? Get in touch
Dalyza Janasiak Ramos
License:
#V-4147
1904 McLeary Ave
Suite 1
San Juan Puerto Rico, 00911
Phone:
787-210-3127
Office:
787-400-0699
Newly Added on Same AreaRecently Sold on Same AreaClosed
1511 Ave. Ponce de Leon PH CIUDADELA SANTURCE #884 San Juan, PR
$860,000
2 Beds
2.1 Bath
1557 SQFT
|










