![]() ![]() ![]() ![]() ![]() ![]() ![]() ![]() ![]() ![]()
Property Type:
Residential Lease
Subtype:
Condominium
Status:
Active
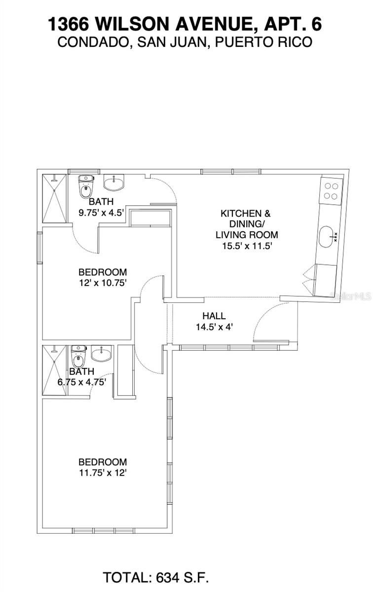
One or more photo(s) has been virtually staged. Perched on the second floor, Unit 6 showcases a well-appointed 2-bedroom, 2-bathroom layout encompassing 634 square feet. Recently upgraded with a new custom kitchen with quartz counter tops, imported tile flooring and modern appliances, the residence offers spacious bedrooms and a seamless flow between living and private areas. Three independent split A/C units—serving each bedroom and the main living space—provide optimal comfort year-round. A bright, airy and efficient design makes this an ideal low-maintenance urban retreat.
These units are delivered furnished, select images are enhanced using AI to showcase the full potential of the space and inspire how you can personalize it to reflect your own style and vision.
Location:
Perfectly positioned in the heart of vibrant Condado, this residence offers an effortless lifestyle just moments from the beach, renowned restaurants, cafes, grocery stores, and premier entertainment. With quick access to major highways and only a 10 minute drive to the airport, the location seamlessly blends convenience with one of San Juan’s most desirable coastal settings.
As part of an exclusive six-unit collection, residents enjoy access to a beautifully maintained shared courtyard, offering a quiet and intimate atmosphere in the heart of the city—where the energy of urban living meets the privacy and serenity of a secluded oasis.
Address:
1366 WILSON AVE #6 San Juan, Puerto Rico 00907
Additional DetailsInteriorTotal Bedrooms 2 Full Bathrooms 2 Laundry Common Area Appliances Convection Oven, Microwave, Refrigerator Other Interior Features Ninguno ExteriorStories 1 Garage Space 1 Cooling Mini-Split Unit(s) RoomsFirst Floor Bedroom 1, Bathroom 1, Bedroom 2, Bathroom 2, Kitchen, Living Room GeneralDays on Market 2 Garage Yes Pets Allowed Monthly Pet Fee Area and LotLot Size in Acres 0.2 Living Area in SQFT 634 Community Features Gated Community - No Guard FinancialAnnual Tax $0 HOA Fees $0 Interested in this property? Get in touch
Dalyza Janasiak Ramos
License:
#V-4147
1904 McLeary Ave
Suite 1
San Juan Puerto Rico, 00911
Phone:
787-210-3127
Office:
787-400-0699
Newly Added on Same AreaRecently Sold on Same AreaClosed
1511 Ave. Ponce de Leon PH CIUDADELA SANTURCE #884 San Juan, PR
$860,000
2 Beds
2.1 Bath
1557 SQFT
|









