Km 15 H 7 PR 115 VILLA LA JOLLA Rincón, Puerto Rico

Property Type: Residential
Subtype: Single Family Residence
Status: Active
3
Rooms
4
Baths
$1,500,000
Sale
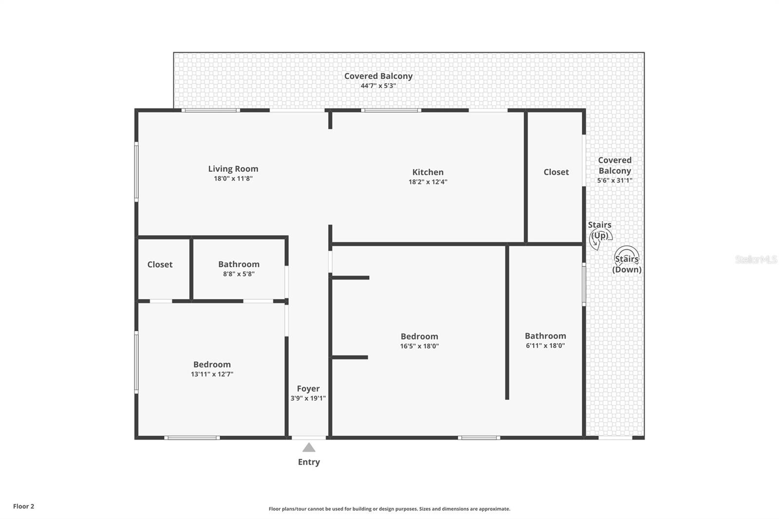
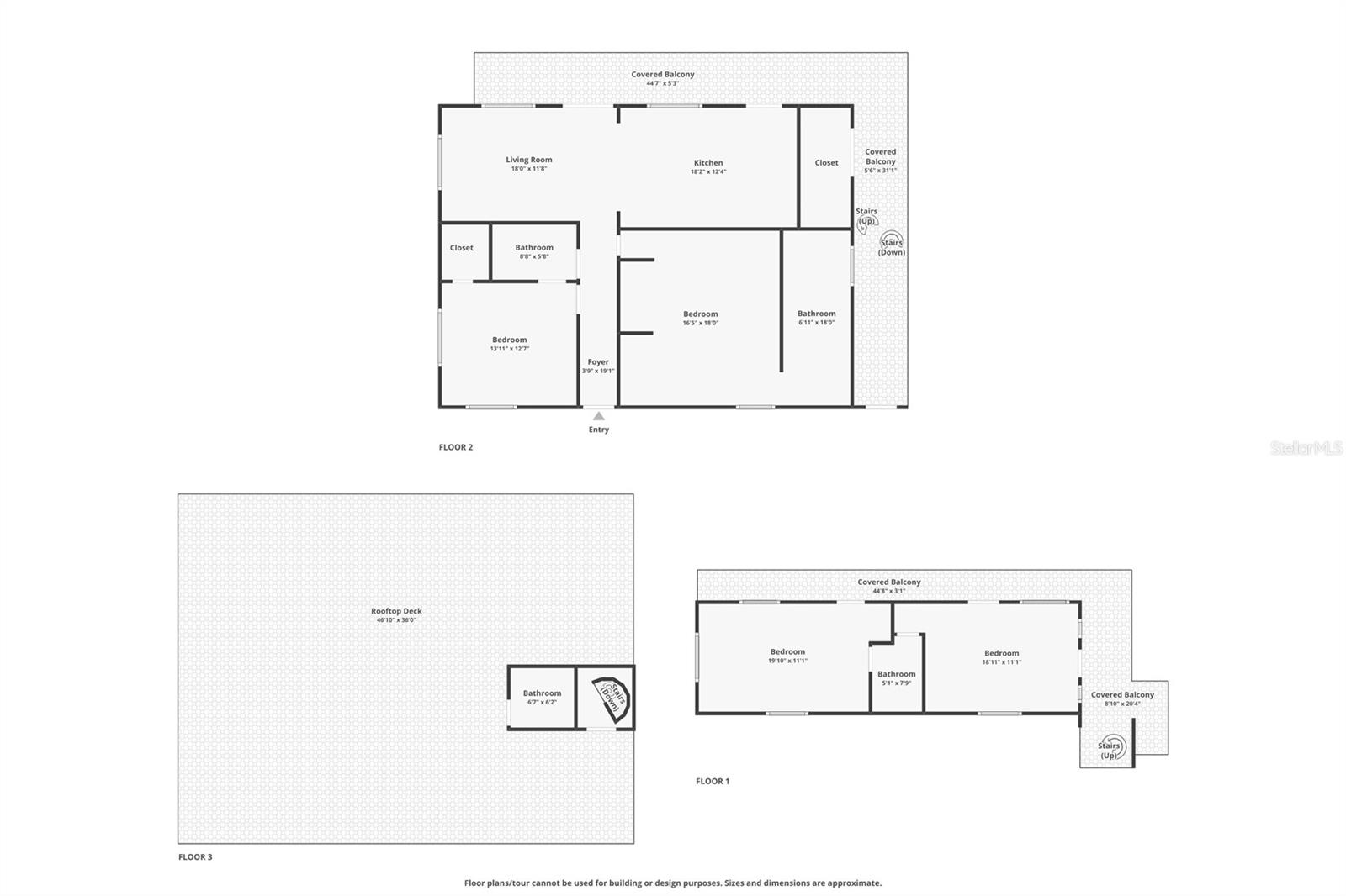
The architecture is rooted in classic Mediterranean influence—marigold-painted walls glowing warmly in the sun, a terracotta tile roof, and graceful arched doorways plus wood shutters covering the windows. Wrought-iron details accent balconies and lanterns, while large wooden doors—weathered just enough—open into airy interiors filled with natural light. The villa is oriented to maximize its incredible ocean views. Oversized windows and scenic balconies blur the boundary between indoors and out, leading to expansive terraces that overlook land and sea. The horizon becomes a living painting—deep blues, shifting golds, and fiery evening skies. Outdoor living is at the heart of the property. A sprawling rooftop terrace with its own full bathroom is set up to build a breathtaking outdoor kitchen. Inside, the villa continues the theme of relaxed elegance—cool stone or terracotta floors, wooden shutters and doors throughout with soft neutral tones that reflect the coastal setting. Rooms are spacious yet inviting, designed for comfort as much as beauty. The main house, located on the street level houses two spacious bedrooms both with oversized closets. The primary bedroom has its own en-suite bathroom and the second bedroom has a Jack & Jill bathroom that also opens to the hallway. On the backside of this level you have an open-layout kitchen, dining, and living room all with views of the ocean in the distance. The laundry closet is located on the side terrace next to the spiral staircase that leads up to the rooftop or down to the in-law suite. This suite has a living room Kitchen combo, one bathroom, one bedroom, plus a wrap around terrace. The land itself is generous, offering both privacy and possibility. Lush landscaping with tropical and native plants creates a sense of seclusion, while open grassy areas provide space for gatherings, gardens, or even additional guest casitas. A private path winds down toward the bottom of the property where it has its own entrance from a quiet public road. With almost 4 acres of land plus two water meters, this offers great potential for expansion. Overall, it’s a home that blends timeless Spanish charm with effortless coastal living—luxurious yet grounded, expansive yet intimate, and always connected to the beauty of nature.
Address: Km 15 H 7 PR 115 VILLA LA JOLLA Rincón, Puerto Rico 00677

Additional Details

Interior

Total Bedrooms
3
Full Bathrooms
4
Laundry
Laundry Closet, Outside
Flooring
Tile
Appliances
Built-In Oven, Dryer, Refrigerator, Washer
Other Interior Features
Kitchen/Family Room Combo, Open Floorplan, Primary Bedroom Main Floor

Exterior

Construction Materials
Concrete
Other Exterior Features
Balcony, Hurricane Shutters, Private Yard

Rooms

Upper Floor
Primary Bedroom, Kitchen, Living Room

General

Days on Market
1

Area and Lot

Lot Size in Acres
3.67
Living Area in SQFT
1792
Utilities
Electricity Connected, Water Connected

Financial

Annual Tax
$0
HOA Fees
$0

Location

From the Plaza of Rincon head North on PR-115 for about 2km then turn right just after the EcoMax Gas station and your destination will be on your right after heading up hill for about 500 meters.

Interested in this property? Get in touch

Justin Turri

License: #24178
PO Box 700
Rincon Puerto Rico, 00677

Newly Added on Same Area

Active
Km 11.5 CARR 115 BARRIO PUEBLO Rincón, PR
$450,000
3 Beds
2.1 Bath
5671 SQFT
Active
26 CALLE CAMBIJA #PH B-312 Rincón, PR
$450,000
2 Beds
1.1 Bath
Active
KM 4.8 CALLE PASCUAL NIEVES Rincón, PR
$420,000
3 Beds
1 Bath
10471 SQFT
Active
Carr 115 BO CALVACHE Rincón, PR
$1,800
2 Beds
2.1 Bath
822 SQFT
Active
Bo Cruces BO CRUCES Rincón, PR
$250,000
6 Beds
3 Bath
16822 SQFT
Active
Condominio SOL & PLAYA 113 Rincón, PR
$1,750
2 Beds
2 Bath
7553 SQFT

Recently Sold on Same Area

Closed
10 SEA BEACH COLONY Rincón, PR
$508,000
3 Beds
3 Bath
4987 SQFT
Closed
Calle Coqui SR 412, KM 4.9 - SOLAR #1 Rincón, PR
$385,000
2 Beds
1 Bath
30492 SQFT
Closed
Rincón, PR
$450,000
5 Beds
3.1 Bath
23250 SQFT
Closed
112 CAMBIJA #B 113 Rincón, PR
$300,000
2 Beds
1 Bath
19747 SQFT
Closed
Benajmin Gomez 11 CALLE BENJAMIN GOMEZ Rincón, PR
$550,000
2 Beds
2 Bath
3560 SQFT
Closed
b-11 UROYUAN Rincón, PR
$1,800
3 Beds
2 Bath
1500 SQFT
Resources
>