Villa Palmeras 326 CALLE COLTON San Juan, Puerto Rico

Property Type: Residential Income
Subtype: Duplex
Status: Active
$240,000
Sale
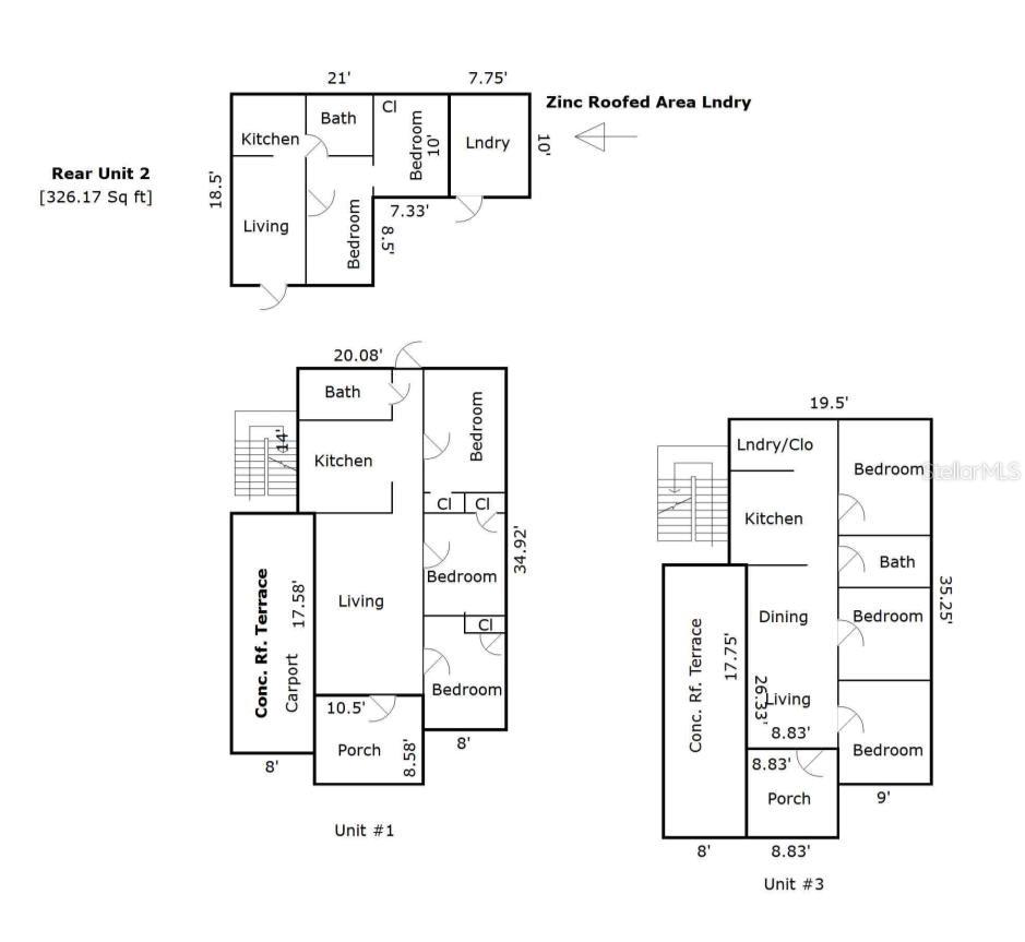
Good opportunity in Villa Palmeras, San Juan. Multi-family property for sale with 3 units, ideal for investors or large families looking for space and profitability. First level: 3 bedrooms, 1 bathroom, living room, dining room and kitchen. Second level: 3 bedrooms, 1 bathroom, living room, dining room and kitchen. Third unit: Independent apartment with 2 bedrooms, 1 bathroom and living room Located in the metropolitan area. Excellent rental income potential. Spacious and versatile structure. Perfect for living in one unit and renting out the others. Perfect for generating residential income from a single property. Three opportunities in one investment. Qualify FHA 203K or cash purchase.
Address: Villa Palmeras 326 CALLE COLTON San Juan, Puerto Rico 00915

Additional Details

Interior

Laundry
Laundry Room
Other Interior Features
Ninguno

Exterior

Construction Materials
Block, Concrete
Garage Space
3
Parking
Garage Faces Side
Other Exterior Features
Balcony

General

Days on Market
1
Garage
Yes

Area and Lot

Lot Size in Acres
0.04
Living Area in SQFT
1581
Utilities
Cable Available, Electricity Available, Electricity Connected, Phone Available

Financial

Annual Tax
$0
HOA Fees
$0

Location

Via Expreso Roman Baldorioty de Castro/PR-26 Head toward Calle Billian/Av Manuel Fernandez Juncos/PR-35 Take the ramp to Carolina Continue onto Expreso Roman Baldorioty de Castro/PR-26 Take exit 4 toward Calle Tapia/Calle Degetau/Calle Providencia Continue onto Marginal Baldorioty de Castro Turn right onto Calle La Esperanza 326 Calle Colton

Interested in this property? Get in touch

Carmen Marrero

License: #19048
1 Parque del Sol Apt 319
Bayamon Puerto Rico, 00959

Newly Added on Same Area

Active
47 AVE JOSE DE DIEGO #32 San Juan, PR
$1,200,000
1449 SQFT
Active
LAS LOMAS H 22 AVE. SAN PATRICIO San Juan, PR
$14,400
7641 SQFT
Active
LAS LOMAS H 22 AVE. SAN PATRICIO San Juan, PR
$33,600
7641 SQFT
Active
312 Loiza LAS CUMBRES #II San Juan, PR
$925
1 Beds
1 Bath
Active
103-105 DE DIEGO AVE #1604S San Juan, PR
$1,250,000
2 Beds
2 Bath
Active
1300 ASHFORD AVENUE #B San Juan, PR
$2,500
1 Beds
1 Bath
1 SQFT

Recently Sold on Same Area

Closed
San Juan, PR
$650,000
4 Beds
2.1 Bath
5877 SQFT
Closed
2306 LAUREL STREET #PH-D San Juan, PR
$8,500
4 Beds
3 Bath
Closed
900 RASPINELL San Juan, PR
$1,200
2 Beds
1 Bath
10222 SQFT
Closed
San Juan, PR
$650,000
4 Beds
2.1 Bath
5877 SQFT
Closed
260 CONSTITUCION #6 San Juan, PR
$750
1 Beds
1 Bath
550 SQFT
Closed
260 CONSTITUCION #11 San Juan, PR
$800
1 Beds
1 Bath
550 SQFT
Resources
>