KM 0.3 PR RD-104 #LA VITA Mayagüez, Puerto Rico

Tipo de Propiedad: Ingreso Residencial
Subtipo: Multi Family
Estado: Expirado
20
Cuartos
BaÑos
$950,000
Venta
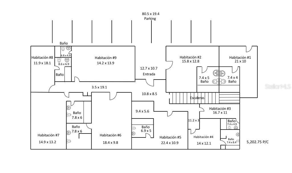
MAYAGUEZ LA VITA UNIVERSITY DORMITORY COMMUNITY + INCOME-PRODUCING PROPERTY IDEAL FOR LONG + SHORT TERM HOUSING - No Applicable restrictive condo laws or covenants - Upper-level features nine (9) Studio Apartments, each with w/private bathroom equipped w/an AC, a refrigerator, stove, and a microwave. The lower level features eleven (10) housing units with a large, shared community kitchen equipped with a dining table, two refrigerators, a stove, and a microwave. These ten-room units also shared four (4) bathrooms in the lower area of the property. (ESP) Propiedad generando ingresos connueve (09) APTS studios con AC, nevera , estufa, microondas y baño. Adicionales, diez (10) habitaciones con AC que comparten 4 areas de ba-nos y una cocina comunal. - GPS: 18.22027185,-67.15177911,5.13077534 - Tenant Occupied + Proof of Funds 48 Notice required to coordinate a VIP Showing - Thank you!
Dirección: KM 0.3 PR RD-104 #LA VITA Mayagüez, Puerto Rico 00681

Detalles Adicionales

Interior

Total de Cuartos
20
Pisos
Ceramic Tile
Otros Detalles
High Ceilings, Kitchen/Family Room Combo

Exterior

Materiales de Construcción
Concrete
Estacionamiento
Assigned
Calentamiento
Ductless
Aire Acondicionado
Ductless, Wall/Window Unit(s)
Otros Detalles
Garden

General

Dias en el Mercado
289

Área y Terreno

Tamaño del Terreno en Acres
0.3
Área Habitable en Pies Cuadrados
5000
Utilidades
Cable Available, Cable Connected, Electricity Available, Electricity Connected, Sewer Available, Sewer Connected, Water Available, Water Connected
Vista
Garden

Inversión

Tax Anual
$0
Costos de HOA
$0

Localización

Mayaguez Road leading to HOA Mansiones de Espana. The property is right before the HOA Community entrance on the Right.

¿Interesado en la Propiedad? Comunicate

Michelle Maloy

Licencia: #16508
1026 Ave Luis Vigoreaux
S#11-E
Guaynabo Puerto Rico, 00966
Teléfono: 787-645-4870

Nuevos Listados en la Misma Área

Activo
61 CALLE BOSQUE Mayagüez, PR
$850
2 Cuartos
1 Baños
800 Pies Cuadrados
Activo
Condo Westernlake VILLAGE I APT 806-B #806-B Mayagüez, PR
$250,000
3 Cuartos
2 Baños
3012 Pies Cuadrados
Activo
CALLE A Mayagüez, PR
$89,000
28119 Pies Cuadrados
Activo
ROAD 108 #Lot A and Lot 53 Mayagüez, PR
$65,717
35369 Pies Cuadrados
Activo
CALLE PITIRRE #Lot 47 Mayagüez, PR
$77,450
41696 Pies Cuadrados
Activo
CALLE PITIRRE #Lot 46 Mayagüez, PR
$66,750
35925 Pies Cuadrados

Recientemente Vendido en la Misma Área

Cerrado
#608 CALLE CATALUÑA Mayagüez, PR
$235,000
3 Cuartos
2 Baños
4273 Pies Cuadrados
Cerrado
Cond. Profesional, 206 CALLE MÉNDEZ VIGO Mayagüez, PR
$80,000
800 Pies Cuadrados
Cerrado
14 Calle Santa Teresa CALLE SANTA TERESA Mayagüez, PR
$195,000
3 Cuartos
2 Baños
4370 Pies Cuadrados
Cerrado
Carr. 2, Km. 159 Interior SECTOR LA LOMA Mayagüez, PR
$650
1 Cuartos
1 Baños
3835 Pies Cuadrados
Cerrado
Carr. 380 URB. VILLA GERENA 320 Mayagüez, PR
$225,000
6 Cuartos
2 Baños
6588 Pies Cuadrados
Cerrado
Calle A VILLA FONTANA Mayagüez, PR
$400,000
4 Cuartos
4 Baños
8611 Pies Cuadrados
Resources
>