757 ENRIQUE LAGUERRE Ponce, Puerto Rico

Tipo de Propiedad: Residencial
Subtipo: Single Family Residence
Estado: Activo
6
Cuartos
4
BaÑos
$550,000
Venta
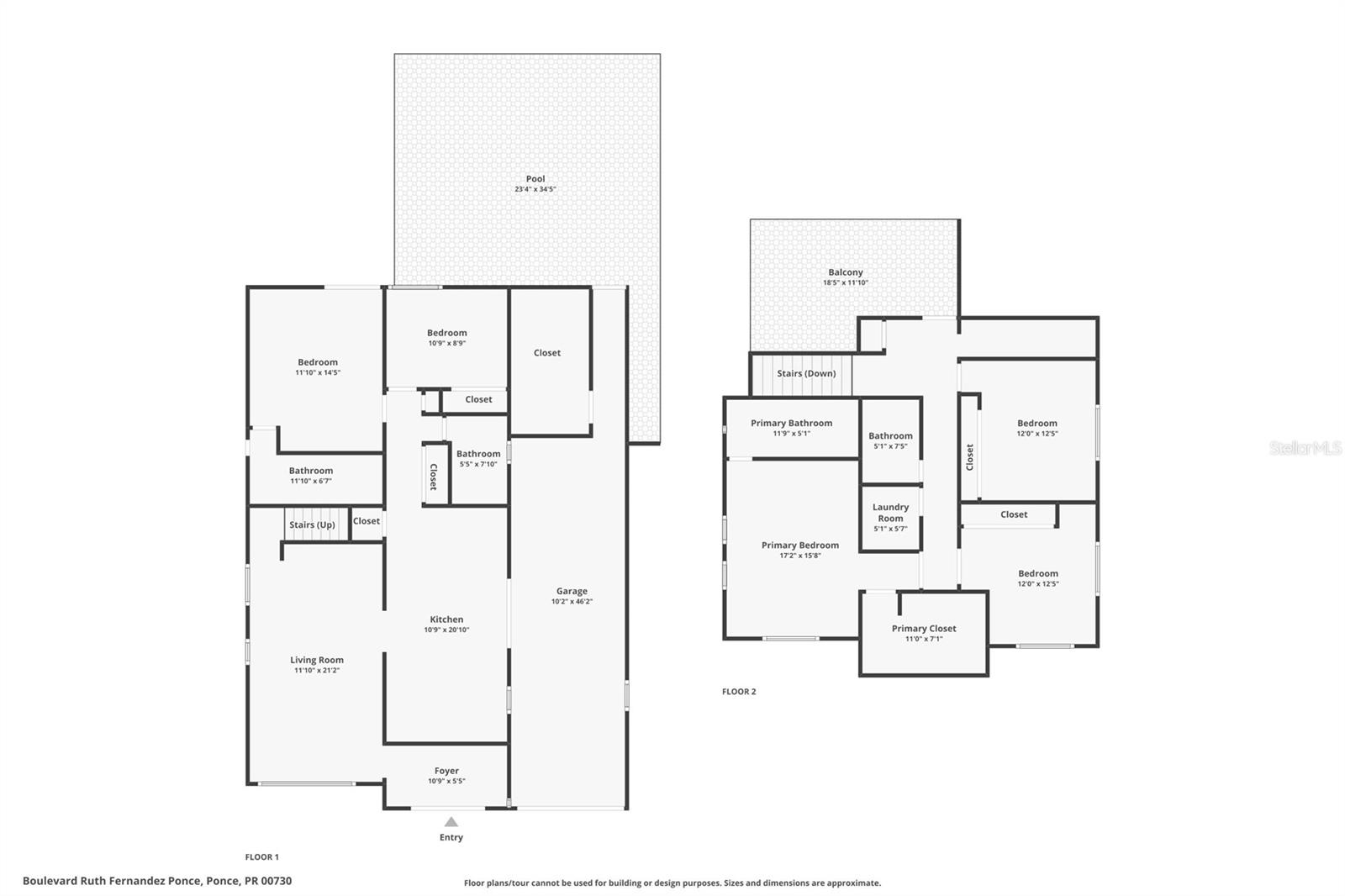
Two–story residence located in the exclusive, gated community of Estancias del Golf Club in Ponce. This spacious property offers 6 bedrooms, 4 bathrooms, a private swimming pool, garage, and a lot size of 325 m² (approx. 3,499 sq ft). Property consist of 2,500 sqft of Gross Living Area. The home includes a 40-gallon cistern and is situated within one of Ponce’s most desirable residential neighborhoods, known for its family-friendly environment and top-tier recreational amenities. The community features 24/7 security, controlled access, recreational areas, sports courts, a large pool, child-friendly play areas, and a gazebo with cafeteria service. Prime location, excellent amenities, and an ideal setting for comfortable family living. HOA fee is $85 monthly. CRIM approx. $1,900 yearly (paid in two installments). Property insurance approx. $875 yearly.
Dirección: 757 ENRIQUE LAGUERRE Ponce, Puerto Rico 00715

Detalles Adicionales

Interior

Total de Cuartos
6
Baños Completos
4
Lavanderia
Laundry Room
Pisos
Concrete
Enseres
Otro
Otros Detalles
Otro

Exterior

Materiales de Construcción
Concrete
Espacio de Garaje
2
Aire Acondicionado
Mini-Split Unit(s)
Otros Detalles
Balcony, Outdoor Grill, Sidewalk, Storage

Cuartos

Second Piso
Balcony/Porch/Lanai, Bathroom 4, Bathroom 3, Primary Bedroom
First Piso
Bathroom 2, Bathroom 3, Family Room, Living Room, Kitchen, Primary Bathroom

General

Dias en el Mercado
116
Garaje
Mascotas Permitidas

Área y Terreno

Tamaño del Terreno en Acres
0.08
Área Habitable en Pies Cuadrados
2500
Utilidades
Otro

Inversión

Tax Anual
$0
Costos de HOA
$85

Localización

Exit the Aeropuerto Internacional Luis Muñoz Marín, via the exit road towards the city of Ponce. Take Highway PR-52 or the main road that connects to Ponce (depending on the exact access). In Ponce, take the access road that connects to the neighborhood where Estancias del Golf is located—many listings show the address entry: “Blvd Ruth Fernández, Ponce, PR 00730.” Continue on Blvd Ruth Fernández to the entrance of the gated community. Enter the community and look for the specific number or street within (for example, Calle C-8, Calle Juan H Cintrón, etc.).

¿Interesado en la Propiedad? Comunicate

Fernando Puig Irizarry

Licencia: #24488
1666 Ave. Ponce de Leon
San Juan Puerto Rico, 00909
Teléfono: 787-298-8199

Nuevos Listados en la Misma Área

Activo
Lot C ROAD #2 Ponce, PR
$15,000,000
1786 Pies Cuadrados
Activo
URB EL MADRIGAL MARGINAL NORTE Ponce, PR
$4,000
7 Cuartos
4.2 Baños
40462 Pies Cuadrados
Activo
165 AVE LAS AMERICAS Ponce, PR
$12,000
900 Pies Cuadrados
Activo
URB. VALLE REAL, INFANTA ST. #1826 Ponce, PR
$2,500
5 Cuartos
3 Baños
4800 Pies Cuadrados
Activo
SIMON DE LA TORRE Ponce, PR
$350,000
8460 Pies Cuadrados
Activo
101 CALLE REINA Ponce, PR
$680,000

Recientemente Vendido en la Misma Área

Cerrado
448 CALLE SOLIMAR VILLA DEL CARMEN Ponce, PR
$1,400
3 Cuartos
1 Baños
3196 Pies Cuadrados
Cerrado
6108 CALLE TORRES EDIFICIO ANTONSANTTI #101 Ponce, PR
$1,500
3 Cuartos
1 Baños
21527 Pies Cuadrados
Cerrado
6108 CALLE TORRES EDIFICIO ANTONSANTTI #304 Ponce, PR
$1,500
3 Cuartos
1 Baños
21527 Pies Cuadrados
Cerrado
6108 CALLE TORRES CONDOMINIO ANTONSANTTI #301 Ponce, PR
$1,500
3 Cuartos
1 Baños
21527 Pies Cuadrados
Cerrado
6108 CALLE TORRES CONDOMINIO ANTONSANTTI #306 Ponce, PR
$1,400
2 Cuartos
1 Baños
800 Pies Cuadrados
Cerrado
1 STARLIGHT Ponce, PR
$175,000
3 Cuartos
1 Baños
25 Pies Cuadrados
Resources
>