Lote 4 R 146 Arecibo, Puerto Rico

Property Type: Residential
Subtype: Single Family Residence
Status: Closed
5
Rooms
3.1
Baths
$190,000
Sale
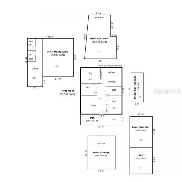
xcellent Mixed-Use Property Near Lago Dos Bocas Mixed-use property offering approximately 923 square feet of construction, consisting of a concrete structure with metal roof, located near the scenic Lago Dos Bocas. The main unit features three (3) bedrooms and one (1) bathroom, suitable for residential use in a quiet, natural setting. The property also includes a second mixed-use structure constructed in concrete with a concrete roof, currently utilized as a religious facility. This additional building provides flexibility for a variety of permitted uses, including commercial or community-related purposes, subject to zoning and municipal regulations. The location offers convenient access to outdoor recreational opportunities near the lake. A versatile option for buyers seeking residential and/or commercial potential. Information is deemed reliable but not guaranteed. Measurements, zoning, and permitted uses to be independently verified.
Address: Lote 4 R 146 Arecibo, Puerto Rico 00612

Additional Details

Interior

Total Bedrooms
5
Full Bathrooms
3
Half Bathrooms
1
Laundry
Other
Flooring
Ceramic Tile
Appliances
Other, Refrigerator
Other Interior Features
Accessibility Features, Ninguno

Exterior

Construction Materials
Block
Heating
Other
Other Exterior Features
Balcony, Courtyard, Other

Rooms

First Floor
Living Room, Kitchen, Primary Bedroom, Primary Bedroom 2

Area and Lot

Lot Size in Acres
1.18
Living Area in SQFT
923
Utilities
Public

Financial

Annual Tax
$0
HOA Fees
$0

Location

Arecibo 00612, Puerto Rico ? Drive along Carretera 10/PR-10 15 min (19.2 km) ? Take PR-621, PR-123 and PR-146 to your destination 16 min (8.7 km)

Agent

Ida Maldonado Rivera

License: #23506
612 Aldebaran St.
San Juan Puerto Rico, 00920

Newly Added on Same Area

Active
SR 659 Villas del Capitan SOLANDRA ST #AA-12 Arecibo, PR
$269,900
4 Beds
2.1 Bath
3670 SQFT
Active
Carr 681 Km 4.5 BO.ISLOTE Arecibo, PR
$1,500,000
479160 SQFT
Active
Condominio Terrazul CONDOMINIO TERRAZUL #2/1 Arecibo, PR
$112,000
2 Beds
1 Bath
868 SQFT
Pending
Calle 10 ISLOTE II PARCELA 219 Arecibo, PR
$279,000
4 Beds
2 Bath
3260 SQFT
Active
637ST BO MIRAFLORES #8-A Arecibo, PR
$85,000
7940 SQFT
Active
682 SANTANA RD Arecibo, PR
$615,000
211520 SQFT

Recently Sold on Same Area

Closed
Calle Antonio González CALLE ANTONIO GONZÁLEZ Arecibo, PR
$90,000
3 Beds
2 Bath
2067 SQFT
Closed
Los Pinos LOS PINOS #101-B Arecibo, PR
$135,000
3 Beds
1 Bath
1198 SQFT
Closed
Colinas de Palmarito BO. HATO ABAJO Arecibo, PR
$68,000
9687 SQFT
Closed
Calle Amapola URBANIZACION VILLA SERENA Arecibo, PR
$159,000
3 Beds
1 Bath
3856 SQFT
Closed
Victor Roja2 280 Arecibo, PR
$135,000
2826 SQFT
Closed
4 JAREALES Arecibo, PR
$1,200
3 Beds
1 Bath
407 SQFT
Resources
>