SR 101 km 16.3 ANGELO ZAPATA ST, LLANOS COSTA WARD Cabo Rojo, Puerto Rico

Property Type: Residential
Subtype: Single Family Residence
Status: Active
2
Rooms
1
Baths
$239,000
Sale
CABO ROJO PUERTO RICO 00623 , Located on SR 101 km 16.3 Llanos Costa , Angelo Zapata Street. According to Maps the Coordinates are (18.024748, -67.146387) Behind the Donatello Laboratory. Property Tax ID Number is 380-017-554-04-001 . Constructed more than 40 years. Lot Size is 927.5 sq meters. Gross Living Area ( GLA ) 805 sq ft. Sales Price is based on location and lot size. Property needs repairs and renovations. Sales Price could be a little bit negotiable. Near to the property we have many places to visit. 120 Places to go to the beach. Many outdoor trails and hiking paths. Cabo Rojo City Is the second largest territory after Vieques with more shore and coastal zone to enjoy the outdoors. This property is ideal for many purposes. Before making the showing appointment the client must provide proof of funds. Lenders letter or precualification and or pre approval lenders letter or proof of funds.
Address: SR 101 km 16.3 ANGELO ZAPATA ST, LLANOS COSTA WARD Cabo Rojo, Puerto Rico 00623

Additional Details

Interior

Total Bedrooms
2
Full Bathrooms
1
Laundry
Outside
Flooring
Terrazzo
Other Interior Features
Ninguno

Exterior

Construction Materials
Block, Concrete
Garage Space
1
Other Exterior Features
Balcony, Sidewalk

Rooms

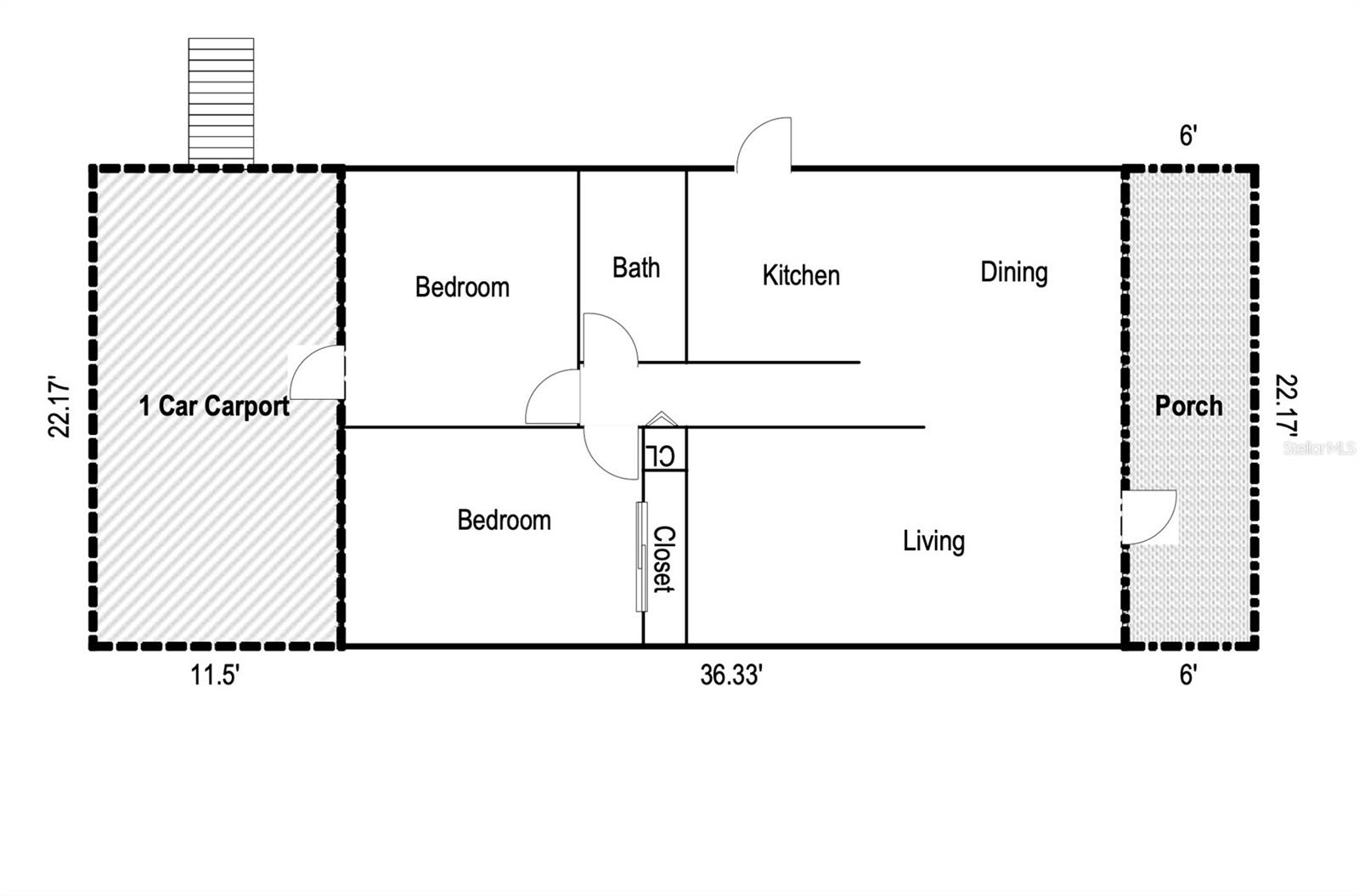
First Floor
Balcony/Porch/Lanai, Bedroom 1, Bedroom 2, Bathroom 1, Kitchen, Living Room, Dining Room, Laundry, Primary Bedroom

General

Days on Market
1
Garage
Yes

Area and Lot

Lot Size in Acres
0.19
Living Area in SQFT
805
Utilities
Electricity Available, Electricity Connected

Financial

Annual Tax
$0
HOA Fees
$0

Location

SR 101 km 16.3 interior , Calle Angelo Zapata , Second house to the right . GPS Coordinates :18.024748, -67.146387

Interested in this property? Get in touch

Eddie Nieves Santiago

License: #15185
PO BOX 5258
MAYAGUEZ Puerto Rico, 00681

Newly Added on Same Area

Active
14 VILLAS DE TANAMARIE #14 Cabo Rojo, PR
$230,000
2 Beds
2 Bath
1500 SQFT
Active
SR 311 KM. 5.3, GUANAJIBO WARD Cabo Rojo, PR
$112,000
84612 SQFT
Active
CARR 3301 W COMBATE Cabo Rojo, PR
$190,000
8613 SQFT
Active
0 "CARRETERA 308 BARRIO MIRADERO" Cabo Rojo, PR
$3,950,000
5 Beds
5.1 Bath
211500 SQFT
Active
BO. COROZO, COMBATE, CARR. 301 KM HM 7.0 Cabo Rojo, PR
$1,700,000
306000 SQFT
Active
SR 102 km 14.6 BARRIO JOYUDA COND TORRE PUESTA DEL SOL #406 Cabo Rojo, PR
$300,000
2 Beds
2 Bath
1139 SQFT

Recently Sold on Same Area

Closed
C302 CAMINO LA MELA #C302 Cabo Rojo, PR
$300,000
2 Beds
2 Bath
1075 SQFT
Closed
VILLA RANIL COND CAMINO DEL MAR #16 Cabo Rojo, PR
$250,000
2 Beds
1.2 Bath
Closed
SR 308 km 1.5 GARDENIA ST URB GIRASOL #B-20 Cabo Rojo, PR
$265,000
3 Beds
2 Bath
3229 SQFT
Closed
SR 301 km 3.4 int LLANOS COSTA #SOLAR 13 Cabo Rojo, PR
$385,000
3 Beds
2 Bath
6458 SQFT
Closed
Cabo Rojo, PR
$180,000
2 Beds
2 Bath
2744 SQFT
Closed
SR 101 km 18.3 BOQUERON WARD Cabo Rojo, PR
$210,000
2 Beds
1.1 Bath
2109 SQFT
Resources
>