3 PR-3 KM 19.9, BARRIO DOS CUERDAS Canóvanas, Puerto Rico

Property Type: Commercial Lease
Subtype: Mixed Use
Status: Active
$16
Rent
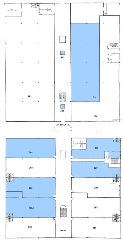
Office space for professionals available for lease near the Outlet 66 Mall in Canovanas. Spaces on the second floor starting at 1600 sf for $16.00 /sf/yr plus $4.00 net expenses. Utilities are seperate. Fiberoptic service available and generator for the common areas. Ample parking. Services at East Medical And Professional Center: Radiology Optometrist Gynecology Pneumology Psychology Urology Cardiology Nutritionist Dialysis
Address: 3 PR-3 KM 19.9, BARRIO DOS CUERDAS Canóvanas, Puerto Rico 00729

Additional Details

Exterior

Construction Materials
Concrete
Garage Space
207

General

Days on Market
2488

Area and Lot

Lot Size in Acres
0.9

Financial

Annual Tax
$0
HOA Fees
$0

Location

Next to Coliseo Miguel Mangual

Interested in this property? Get in touch

Leon Winer

License: #03937
PO Box 190858
San Juan Puerto Rico, 00919

Newly Added on Same Area

Active
Rio grande G11 RIVERAS VALLEY DEV. Canóvanas, PR
$350,000
3 Beds
2.1 Bath
4266 SQFT
Active
O-25 Flor de Tana St URB. RIVER GARDENS Canóvanas, PR
$3,000
4 Beds
2.1 Bath
3358 SQFT
Active
Carr. 186 INT 9948 KM 7.4 SECTOR MARINES CUBUY Canóvanas, PR
$498,500
4 Beds
2 Bath
211454 SQFT
Active
El Yunque KM 10 CARR. 186 Canóvanas, PR
$1,075,000
6 Beds
4.1 Bath
5205 SQFT
Active
PR 185 Km. 66 INT PR 3 Canóvanas, PR
$0
220724 SQFT
Active
PR-962 INT. CAMBALACHE Canóvanas, PR
$1,400,000
751361 SQFT

Recently Sold on Same Area

Closed
calle 1 SAN ISIDRO #Lot 1 Canóvanas, PR
$92,000
3 Beds
2 Bath
1200 SQFT
Closed
Calle 25 VILLAS DE LOIZA Canóvanas, PR
$975
2 Beds
1 Bath
800 SQFT
Closed
S 4 EXT JARDINES DE PALMAREJO Canóvanas, PR
$38,900
3 Beds
1 Bath
3045 SQFT
Closed
Bronce 28 Canóvanas, PR
$539,000
6 Beds
6.1 Bath
9709 SQFT
Closed
1 CALLE, BO LAS LOMAS CO. LAS 400 , FINCA 8 Canóvanas, PR
$380,000
3 Beds
2 Bath
666337 SQFT
Closed
CALLE CAMINO ALTO LAS HACIENDAS DE CANOVANAS #131 Canóvanas, PR
$485,000
4 Beds
2.1 Bath
5976 SQFT
Resources
>