SR-312 km 5.3 int LLANOS TUNA WARD CAMINO ASENCIO Cabo Rojo, Puerto Rico

Property Type: Residential
Subtype: Single Family Residence
Status: Active
4
Rooms
2
Baths
$159,900
Sale
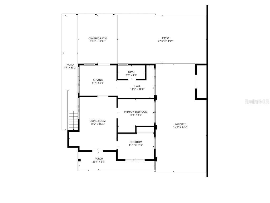
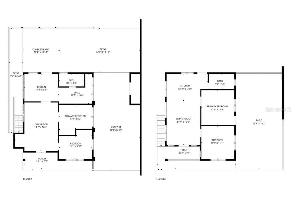
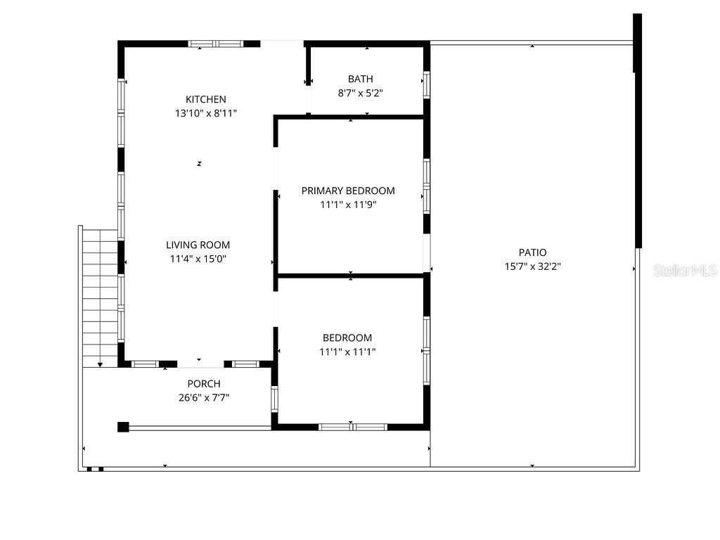
Discover an excellent small-income residential opportunity in the scenic Llanos Tuna Ward of Cabo Rojo, Puerto Rico. This two-story property is situated on PR-312 Km 5.3 Interior, offering an ideal balance of privacy, accessibility, and investment potential. The residence is built on a 1,071-square-meter lot (approximately 11,530 sq. ft.) and includes two living units with a total of approximately 1,359 sq. ft. of living area. Constructed in reinforced concrete with concrete block, wood, and metal components, this tropical-style home reflects the durability and charm of the region. Each floor functions as a separate apartment with independent access, ideal for extended families or generating rental income. Unit 1 (first floor) features a living room, dining area, kitchen, two bedrooms, one bathroom, a front porch, a hallway, and a closet area. Unit 2 (second floor) includes a living room, dining area, kitchen, two bedrooms, one bathroom, a balcony, and open terrace spaces with covered metal areas. The property also includes an extended two-car carport, utility area with an additional bathroom, three metal-covered spaces, fenced yard, and concrete paved areas surrounding the house. Interior finishes include ceramic and terrazzo floors, plaster walls, and ceramic-tiled bathrooms. The roof is a combination of concrete and metal in good condition, complemented by glass and aluminum windows that provide abundant natural light and ventilation. The property is serviced by PREPA for electricity and PRASA for water, includes a septic tank system, and benefits from asphalt road access with street lighting. Appraised at $150,000 as of July 29, 2025, this property represents an excellent investment opportunity in a market where financing is available through multiple sources such as Fannie Mae, Freddie Mac, VA, and HUD programs. Comparable rental properties in the area demonstrate a strong potential for generating approximately $1,100 each month in gross rental income. The surrounding community offers a stable residential environment with adequate infrastructure, access to schools, medical services, and employment centers, and steady housing demand with an estimated exposure time of 18 months. Located between PR-101 and PR-102, the property sits in a semi-level suburban neighborhood bounded by the Lajas municipal limits and Pedernales Ward. The area’s zoning (A-G General Agricultural) allows for small income residential use, consistent with its current operation. Its proximity to Cabo Rojo’s most desirable destinations—including Boquerón, Combate, Buyé, and Joyuda Beaches—makes it ideal for those seeking to combine rural tranquility with coastal living. This home’s solid construction, dual-unit layout, and flexible design make it an excellent choice for investors, multi-family living, or individuals seeking long-term rental potential in Puerto Rico’s southwest coast. Whether you envision living in one unit and renting the other, or converting both into short-term rentals subject to local regulations, this property offers a rare opportunity to own a versatile and income-producing asset in one of Cabo Rojo’s most accessible neighborhoods.
Address: SR-312 km 5.3 int LLANOS TUNA WARD CAMINO ASENCIO Cabo Rojo, Puerto Rico 00623

Additional Details

Interior

Total Bedrooms
4
Full Bathrooms
2
Laundry
In Kitchen
Flooring
Ceramic Tile, Terrazzo
Other Interior Features
Ninguno

Exterior

Construction Materials
Concrete
Garage Space
2
Cooling
Mini-Split Unit(s)
Other Exterior Features
Lighting, Rain Barrel/Cistern(s), Rain Gutters

Rooms

First Floor
Primary Bedroom, Primary Bathroom, Bedroom 2, Living Room, Dining Room, Kitchen
Second Floor
Bedroom 1, Bedroom 2, Bathroom 2, Kitchen, Dining Room

General

Days on Market
1
Garage
Yes

Area and Lot

Lot Size in Acres
0.26
Living Area in SQFT
1359
Utilities
Cable Available, Cable Connected, Electricity Available, Electricity Connected, Water Available, Water Connected

Financial

Annual Tax
$0
HOA Fees
$0

Location

From Rafael Hernández International Airport (BQN), take PR-107 South toward PR-2. Continue on PR-2 West passing Mayagüez and follow signs to PR-100 South toward Cabo Rojo. Drive approximately 12 miles, then turn right onto PR-312. Continue along PR-312 for about 5.3 kilometers into Llanos Tuna Ward. The property is located on the interior side of PR-312, in a residential area between PR-101 and PR-102.

Interested in this property? Get in touch

Eddie Nieves Santiago

License: #C-15185
PO BOX 5258
MAYAGUEZ Puerto Rico, 00681

Newly Added on Same Area

Active
SR-307 KM-7 URB BELLO HORIZONTE #LOT 11 Cabo Rojo, PR
$369,900
3 Beds
2 Bath
6339 SQFT
Active
SR 102 km 14.3 Parabueyon ITALIA STREET LOT # 1 #51 K Cabo Rojo, PR
$190,000
4 Beds
3 Bath
8525 SQFT
Pending
SR 307 KM 3.5 INT CONDOMINIO BAHIA REAL AT VILLA LA MELA BEACH #204 A Cabo Rojo, PR
$900
2 Beds
2 Bath
1180 SQFT
Active
103 CARRETERA KM 12.7 INTERIOR #B-14 Cabo Rojo, PR
$375,000
3 Beds
3 Bath
6980 SQFT
Active
SR 103 KM 13.2 CAMIN LOS MARTINEZ SECTOR #LOT 6 Cabo Rojo, PR
$89,900
10763 SQFT
Pending
SR-307 KM 7.5 INT ESTANCIAS DE ALTA VISTA #LOT - 1 Cabo Rojo, PR
$439,900
3 Beds
3 Bath
11797 SQFT

Recently Sold on Same Area

Closed
Carr 102 BO GUANAJIBO Cabo Rojo, PR
$95,000
9687 SQFT
Closed
SR 3301 km 2.8 SECTOR EL COMBATE BARRIO BOQUERON #308 B Cabo Rojo, PR
$315,000
1 Beds
1 Bath
790 SQFT
Closed
SR 3301 km 2.8 SECTOR EL COMBATE BARRIO BOQUERON #410 C Cabo Rojo, PR
$375,000
2 Beds
2 Bath
169 SQFT
Closed
Sec Punta Arenas COND TORRE MARSELLA #801 Cabo Rojo, PR
$649,000
3 Beds
4.1 Bath
Closed
Carr. 103, Km. 10.9 BO. BOQUERÓN, CABO ROJO Cabo Rojo, PR
$50,000
5686 SQFT
Closed
Urb. Monte Grande CALLE ESMERALDA Cabo Rojo, PR
$40,000
4306 SQFT
Resources
>